Vasalat:
2 db 3-részes 3D-ben állítható konstrukciós pánt szárnyanként (≥ 2.500 mm BRM-magasságtól: 3 db), standard kivitelben RAL 9016 fehér színre porszórva, opcionálisan rozsdamentes felülettel; 2 db kiemelésgátló biztonsági csap szárnyanként; biztonsági PZ-váltózár rozsdamentes zárelőlappal, fekete műanyag rozettás kilinccsel, cilinderbetét nélkül, (szükséges cilinderbetét: 90 mm (45/45), kétszárnyú ajtók állószárnyán felső reteszelésű falcban futó letűzőzár, opcionálisan alsó-felső reteszeléssel.
Ajtócsukó:
Egyszárnyú ajtóknál standard kivitelben NFGS 55 típusú csúszósines ajtócsukó, (> 1.250 mm-től: Geze TS 5000). Kétszárnyú ajtóknál Dorma TS 93 GSR vagy Geze TS 5000 ISM integrált csukássorrend-szabályzóval, középső ütközővel és falctömítéssel.
Tok:
Standard kivitelben: saroktok 3-oldalon körbefutó gumitömítéssel, lemezvastagság: 2,0 mm, tükörszélesség: 50 mm, opcionálisan válaszfaltok, utólag szerelhető tok, profilszám: 2240B, ellentok vagy blokktok
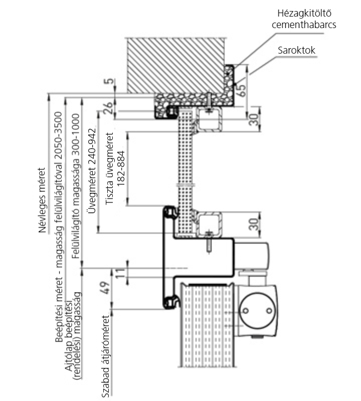
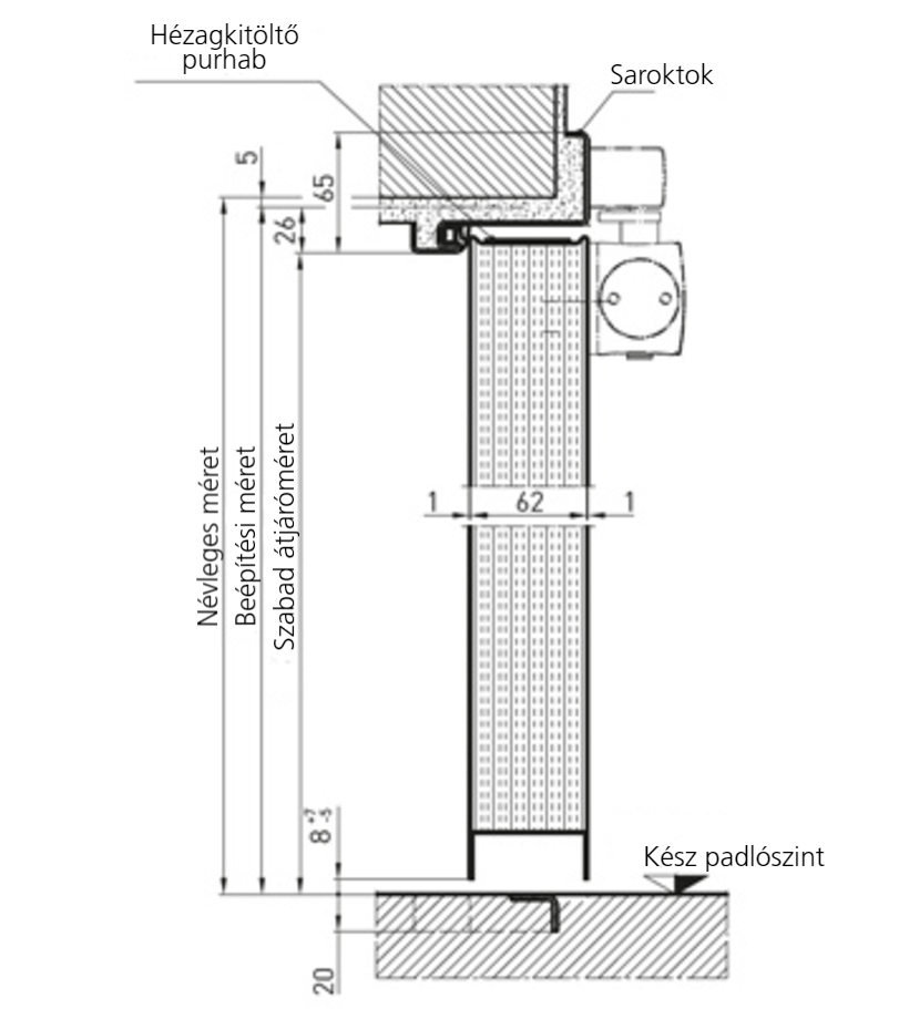
Küszöb:
Standard kivitelben: egyenes, A típus, választható: B3, 4-oldalon körbefutó kerettel; C2 alsó ütközővel; RS1 süllyedőküszöbbel; RS1 dupla süllyedőküszöbbel; RS2 íves profil ráfutóküszöbbel
Felület:
Ajtólap és tok standard kivitelben: horganyzott, alapozott RAL 9016 fehér színben
Opcionális felület: ajtólap, tok és pántok designfólia bevonattal