Novoslide Industry tűzgátló tolókapu

EN 16034 és EN 13241 szabvány szerint engedélyezett tűzgátló tolókapu ipari és kereskedelmi épületek tűzszakasz határainak lezárására
A nagy alapterületű létesítmények, pl. parkolóházak, mélygarázsok, bevásárlóközpontok szakaszolásához különleges tudású kapukra van szükség. Számos feltételnek kell megfelelniük, de különösen a biztonsági követelmények játszanak fontos szerepet. 
A tűzgátló tolókapukra a harmonizált  EN 16034 (tűzgátló és/vagy füstgátló ajtók termékszabványa) és az EN 13241 (ipari ajtók/kapuk nem tűz- és/vagy füstgátló jellemzőinek termékszabványa) vonatkozik.
Az új Novoslide Industry tűzgátló tolókaput úgy fejlesztették ki, hogy megfeleljen mindkét termékszabvány szigorú előírásainak. Ennek eredményeképpen a kapuk CE-jelöléssel egész Európában biztonságosan forgalmazhatók.  Az egyes európai országok helyi szabályozásainak megfelelve a kapuk az összes szokásos tűzállósági osztályban elérhetők.

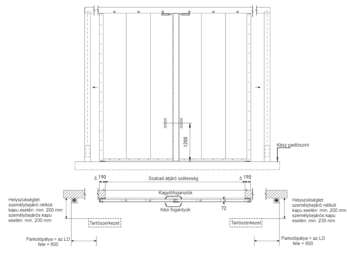
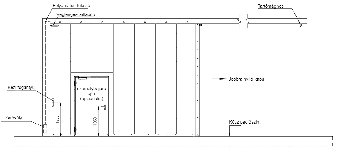
A tűzgátló tolókapuk az épületek tűzszakasz határait választják el egymástól. A Novoslide Industry  tűzgátló tolókapu könnyű szerelhetősége és kiváló tűzvédelmi tulajdonsága miatt tökéletesen teljesíti ezt a feladatot. A gyárilag előre összeszerelt komponenseknek köszönhetően a kapu telepítése gyorsan és egyszerűen végezhető el. Már a panelek vezetősínbe állításával is időt takarít meg, mivel minden egyes panelre a görgő előre fel van rögzítve. A tűzállóságot tekintve is jól teljesít a Novoslide Industry, hiszen még Ei120 perces kategóriában is megfelelt a termék. 120 perc elteltével a vizsgáló kemencében a hőmérséklet jóval meghaladja az 1000 ° C-ot, ami nemcsak a kapunak, de a falazatnak is rendkívül megterhelő. Még ilyen extrém körülmények között is csak minimálisan deformálódhat a kapu és teljesítenie kell a helyiségek lezárására és a hőszigetelésre vonatkozó szigorú követelményeket. 

Előnyök pontokba szedve:

1. Gyors és egyszerű szerelhetőség

2. A gyárilag előre összeszerelt komponensek a helyszíni beépítéskor sok időt takarítanak meg

3. Minden panelre előre rá van szerelve a görgő, így a sorbaállításuk gyors és egyszerű

4. Sa és S200 füstgátló kivitelnél nincs szükség a panelek közötti rések szilikonozására, mert az illesztések gyári tömítéssel rendelkeznek

Műszaki adatok

Felkeltettük érdeklődését?