TŰZ- ÉS FÜSTgátló tolókapuk

BEVIZSGÁLT BIZTONSÁG IPARI ÉS KÖZÉPÜLETEK TŰZVÉDELMI LEZÁRÁSAIHOZ

Számos nagy alapterületű létesítményben, pl. parkolóházakban, mélygarázsokban, bevásárlóközpontokban a beépített kapuknak különleges követelményeket kell teljesíteniük, melyek közül a biztonsági szempontok játszák a legnagyobb szerepet.

Az ilyen típusú tűzgátló nyílászárókra az EN 16034 (ajtók és ablakok tűzállósági/ füstgátlási jellemzői) és az EN 13241 (garázsajtók, kapuk) európai termékszabványok vonatkoznak. Az új NovoSlide Industry tűzgátló tolókaput kifejezetten úgy fejlesztettük ki, hogy megfeleljen e két európai termékszabvány szigorú előírásainak.

Így a NOVOSLIDE INDUSTRY tűzgátló tolókapu – CE-jelöléssel ellátott épületelemként – egész Európában biztonságosan forgalmazható.

A kaputípusok áttekintése

EI2 30 tűzgátló tolókapu
1 és 2 szárnyú kivitelben

EI2 60 tűzgátló tolókapu
1 és 2 szárnyú kivitelben

EI2 90 tűzgátló tolókapu
1 és 2 szárnyú kivitelben

EI2 120 tűzgátló tolókapu
1 és 2 szárnyú kivitelben

Tűzgátló tolókapuk összehasonlítása és részletei

1-SZÁRNYÚ tűzgátló tolókapuk

ÁTTEKINTÉS

Jellemzők

EI2 30

EI2 60

EI2 90

EI2 120

Elemekből álló, tele kapulap

*

*

*

*

Horganyzott kapulap és keretek

*

*

*

*

 

Minősítés (bevizsgálás)

Tűzállósági jellemzők EN 1634-1 szerint vizsgálva,
EN 16034 és EN 13241 szerint minősítve.

Tűzállósági jellemzők EN 1634-1 szerint vizsgálva,
EN 16034 és EN 13241 szerint minősítve.

Tűzállósági jellemzők EN 1634-1 szerint vizsgálva,
EN 16034 és EN 13241 szerint minősítve.

Tűzállósági jellemzők EN 1634-1 szerint vizsgálva,
EN 16034 és EN 13241 szerint minősítve.

Kivitelek

 

 

 

 

EI2 30

*

 

 

 

EI2 60

 

*

 

 

EI2 90

 

 

*

 

EI2 120

 

 

 

*

Füstgátlás Sa (tele kapulap)

* 8.500 x 6.000 mm-ig (max. 46,5 m²)

° 8.500 x 6.000 mm-ig (max. 46,5 m²)

° 8.500 x 6.000 mm-ig (max. 46,5 m²)

° 8.500 x 6.000 mm-ig (max. 46,5 m²)

Füstgátlás S200 (tele kapulap)

* max. 30,4 m2 - ig

° max. 30,4 m2 - ig

° max. 30,4 m2 - ig

° max. 30,4 m2 - ig

Folyamatos fékező

*

*

*

*

Kirögzítő berendezés

°

°

°

°

Leírás    

 

Engedélyezett méretek

Szabad nyílásméret a kész padlószinttől:
1.000 x 2.000 mm-től 8.500 x 6.000 mm-ig 
(max. 50 m2)

Szabad nyílásméret a kész padlószinttől:
1.000 x 2.000 mm-től 8.500 x 6.000 mm-ig 
(max. 50 m2)

Szabad nyílásméret a kész padlószinttől:
1.000 x 2.000 mm-től 8.500 x 6.000 mm-ig 
(max. 50 m2)

Szabad nyílásméret a kész padlószinttől:
1.000 x 2.000 mm-től 8.500 x 6.000 mm-ig 
(max. 50 m2)

Kapulap: vastagság kb. 72 mm, lemezvastagság: 0,75 mm, súly kb. 54 kg/ m2


*


*


*


*

 

A szabad nyílás szükséges fedése a
kapulap által

oldalanként

≥ 150 a záródó oldalon 1) 
≥ 195 a parkolómezőnél 1)

≥ 150 a záródó oldalon 1) 
≥ 195 a parkolómezőnél 1)

≥ 150 a záródó oldalon 1) 
≥ 195 a parkolómezőnél 1)

≥ 150 a záródó oldalon 1) 
≥ 195 a parkolómezőnél 1)

az áthidalónál

≥ 120 1)

≥ 120 1)

≥ 120 1)

≥ 120 1)

alacsony áthidalónál

≥ 120 1)

≥ 120 1)

≥ 120 1)

≥ 120 1)

Nyitott kapu parkolómezője (első súlykamra esetén)

LD + 495 1)

LD + 495 1)

LD + 495 1)

LD + 495 1)

 

 

 

 

Szükséges áthidalómagasság

fali szerelés normál áthidalóra

≥ 250 1)

≥ 250 1)

≥ 250 1)

≥ 250 1)

mennyezeti szerelés 
alacsony áthidalóval

≥ 150 1)

≥ 150 1)

≥ 150 1)

≥ 150 1)

mennyezeti szerelés kifutó födémre

≥ 150 1)

≥ 150 1)

≥ 150 1)

≥ 150 1)

burkolt acélszerkezet
(statikai számítások alapján)

≥ 250 1)

≥ 250 1)

≥ 250 1)

≥ 250 1)

A tartószerkezet faltól való
távolsága a parkolómezőben

személybejáró ajtó nélkül

≥ 200

≥ 200

≥ 200

≥ 200

személybejáró ajtóval

≥ 230

≥ 230

≥ 230

≥ 230

 

 

 

 

 

 

 

Küszöb a mozgás- és parkolómezőben


Csak S200 füstgátló kapuknál szükséges:

Süllyesztett: A kapu beszerelése előtt padlóba süllyesztett
küszöb a Novofermmel történt egyeztetés
alapján lehetséges.

Rászerelt: Rászerelt küszöb esetén a mozgó és parkoló
mezőben a padlószint eltérésének megengedett
tűréshatárait a DIN 18202 szabvány, 3-as táblázat, 4-es
bekezdése tartalmazza.

Választható
Sík, egyenes, fuga nélküli padló esetén a
padlóküszöb elhagyható. (max. toleranciaérték: 5 mm)


Csak S200 füstgátló kapuknál szükséges:

Süllyesztett: A kapu beszerelése előtt padlóba süllyesztett
küszöb a Novofermmel történt egyeztetés
alapján lehetséges.

Rászerelt: Rászerelt küszöb esetén a mozgó és parkoló
mezőben a padlószint eltérésének megengedett
tűréshatárait a DIN 18202 szabvány, 3-as táblázat, 4-es
bekezdése tartalmazza.

Választható
Sík, egyenes, fuga nélküli padló esetén a
padlóküszöb elhagyható. (max. toleranciaérték: 5 mm)


Csak S200 füstgátló kapuknál szükséges:

Süllyesztett: A kapu beszerelése előtt padlóba süllyesztett
küszöb a Novofermmel történt egyeztetés
alapján lehetséges.

Rászerelt: Rászerelt küszöb esetén a mozgó és parkoló
mezőben a padlószint eltérésének megengedett
tűréshatárait a DIN 18202 szabvány, 3-as táblázat, 4-es
bekezdése tartalmazza.

Választható
Sík, egyenes, fuga nélküli padló esetén a
padlóküszöb elhagyható. (max. toleranciaérték: 5 mm)


Csak S200 füstgátló kapuknál szükséges:

Süllyesztett: A kapu beszerelése előtt padlóba süllyesztett
küszöb a Novofermmel történt egyeztetés
alapján lehetséges.

Rászerelt: Rászerelt küszöb esetén a mozgó és parkoló
mezőben a padlószint eltérésének megengedett
tűréshatárait a DIN 18202 szabvány, 3-as táblázat, 4-es
bekezdése tartalmazza.

Választható
Sík, egyenes, fuga nélküli padló esetén a
padlóküszöb elhagyható. (max. toleranciaérték: 5 mm)

Kiegészítők

 

 

 

 

Személybejáró ajtó ajtócsukóval Sa

° max. 46,5 m²-ig

° max. 46,5 m²-ig

° max. 46,5 m²-ig

° max. 46,5 m²-ig

Személybejáró ajtó ajtócsukóval S200

° max. 23,4 m²-ig

° max. 23,4 m²-ig

° max. 23,4 m²-ig

° max. 23,4 m²-ig

Befelé (nyílásba) nyíló személybejáró ajtó

° max. 23,4 m²-ig

° max. 23,4 m²-ig

° max. 23,4 m²-ig

-

Kampós zár

°

°

°

°

Tompa oldalsó befutópanel

°

°

°

°

Mennyezeti szerelés alacsony áthidalóval

°

°

°

°

Elektromos nyitóberendezés

°

°

°

°

Üvegezés

-

-

-

-

Szabadonfutó funkció

-

-

-

-

Mennyezeti/nyílásburkolatok

-

-

-

-

Biztonsági fékrúd

-

-

-

-

LD =szabad átjáróméret   OKF = kész padlószint   * = alapkivitel   ° = opcionális   — = jelenleg nem rendelhető      Minden méret mm-ben.

1) A tartóelem és az épületszerkezet közötti rést fugázni szükséges.
2-SZÁRNYÚ tűzgátló tolókapuk

ÁTTEKINTÉS

Jellemzők

EI2 30

EI2 60

EI2 90

EI2 120

Elemekből álló, tele kapulap

*

*

*

*

Horganyzott kapulap és keretek

*

*

*

*

 

Minősítés (bevizsgálás)

Tűzállósági jellemzők EN 1634-1 szerint vizsgálva,
EN 16034 és EN 13241 szerint minősítve.

Tűzállósági jellemzők EN 1634-1 szerint vizsgálva,
EN 16034 és EN 13241 szerint minősítve.

Tűzállósági jellemzők EN 1634-1 szerint vizsgálva,
EN 16034 és EN 13241 szerint minősítve.

Tűzállósági jellemzők EN 1634-1 szerint vizsgálva,
EN 16034 és EN 13241 szerint minősítve.

Kivitelek    
EI2 30

*

 

 

 

EI2 60

 

*

 

 

EI2 90

 

 

*

 

EI2 120

 

 

 

*

Füstgátlás Sa (tele kapulap)

* 8.500 x 6.000 mm-ig 
(max. 46,5 m²)

° 8.500 x 6.000 mm-ig (max. 46,5 m²)

° 8.500 x 6.000 mm-ig (max. 46,5 m²)

° 8.500 x 6.000 mm-ig (max. 46,5 m²)

Füstgátlás S200 (tele kapulap)

* max. 28,3 m2 - ig

° max. 28,3 m2 - ig

° max. 28,3 m2 - ig

° max. 28,3 m2 - ig

Folyamatos fékező

*

*

*

*

Kirögzítő berendezés

°

°

°

°

Leírás    


Engedélyezett méretek

Szabad nyílásméret a kész padlószinttől:
2.000 x 2.000 mm-től 
8.500 x 6.000 mm-ig 
(max. 50 m2)

Szabad nyílásméret a kész padlószinttől:
2.000 x 2.000 mm-től 
8.500 x 6.000 mm-ig 
(max. 50 m2)

Szabad nyílásméret a kész padlószinttől:
2.000 x 2.000 mm-től 
8.500 x 6.000 mm-ig 
(max. 50 m2)

Szabad nyílásméret a kész padlószinttől:
2.000 x 2.000 mm-től 
8.500 x 6.000 mm-ig 
(max. 50 m2)

Kapulap: vastagság kb. 72 mm, lemezvastagság: 0,75 mm, súly kb. 54 kg/ m2

*

*

*

*


A szabad nyílás szükséges fedése a
kapulap által
oldalanként

≥ 195 a parkolómezőnél 1)

≥ 195 a parkolómezőnél 1)

≥ 195 a parkolómezőnél 1)

≥ 195 a parkolómezőnél 1)

az áthidalónál

≥ 120 1)

≥ 120 1)

≥ 120 1)

≥ 120 1)

alacsony áthidalónál

≥ 120 1)

≥ 120 1)

≥ 120 1)

≥ 120 1)

Nyitott kapu parkolómezője

szárnyanként: 
LD/2 + 600 1)

szárnyanként: 
LD/2 + 600 1)

szárnyanként: 
LD/2 + 600 1)

szárnyanként: 
LD/2 + 600 1)

 

 

 

 

Szükséges áthidalómagasság

fali szerelés normál áthidalóra


≥ 250 1)


≥ 250 1)


≥ 250 1)


≥ 250 1)

mennyezeti szerelés 
alacsony áthidalóval


≥ 150 1)


≥ 150 1)


≥ 150 1)


≥ 150 1)

mennyezeti szerelés kifutó födémre


≥ 150 1)


≥ 150 1)


≥ 150 1)


≥ 150 1)

burkolt acélszerkezet
(statikai számítások alapján)


≥ 250 1)


≥ 250 1)


≥ 250 1)


≥ 250 1)

A tartószerkezet faltól való
távolsága a parkolómezőben
személybejáró ajtó nélkül

≥ 200

≥ 200

≥ 200

≥ 200

személybejáró ajtóval

≥ 230

≥ 230

≥ 230

≥ 230

 

 

 






Küszöb a mozgás- és parkolómezőben

Csak S200 füstgátló kapuknál szükséges:

Süllyesztett: A kapu beszerelése előtt padlóba süllyesztett
küszöb a Novofermmel történt egyeztetés
alapján lehetséges.

Rászerelt: Rászerelt küszöb esetén a mozgó és parkoló
mezőben a padlószint eltérésének megengedett
tűréshatárait a DIN 18202 szabvány, 3-as táblázat, 4-es
bekezdése tartalmazza.

Választható
Sík, egyenes, fuga nélküli padló esetén a
padlóküszöb elhagyható. (max. toleranciaérték: 5 mm)
Csak S200 füstgátló kapuknál szükséges:

Süllyesztett: A kapu beszerelése előtt padlóba süllyesztett
küszöb a Novofermmel történt egyeztetés
alapján lehetséges.

Rászerelt: Rászerelt küszöb esetén a mozgó és parkoló
mezőben a padlószint eltérésének megengedett
tűréshatárait a DIN 18202 szabvány, 3-as táblázat, 4-es
bekezdése tartalmazza.

Választható
Sík, egyenes, fuga nélküli padló esetén a
padlóküszöb elhagyható. (max. toleranciaérték: 5 mm)
Csak S200 füstgátló kapuknál szükséges:

Süllyesztett: A kapu beszerelése előtt padlóba süllyesztett
küszöb a Novofermmel történt egyeztetés
alapján lehetséges.

Rászerelt: Rászerelt küszöb esetén a mozgó és parkoló
mezőben a padlószint eltérésének megengedett
tűréshatárait a DIN 18202 szabvány, 3-as táblázat, 4-es
bekezdése tartalmazza.

Választható
Sík, egyenes, fuga nélküli padló esetén a
padlóküszöb elhagyható. (max. toleranciaérték: 5 mm)
Csak S200 füstgátló kapuknál szükséges:

Süllyesztett: A kapu beszerelése előtt padlóba süllyesztett
küszöb a Novofermmel történt egyeztetés
alapján lehetséges.

Rászerelt: Rászerelt küszöb esetén a mozgó és parkoló
mezőben a padlószint eltérésének megengedett
tűréshatárait a DIN 18202 szabvány, 3-as táblázat, 4-es
bekezdése tartalmazza.

Választható
Sík, egyenes, fuga nélküli padló esetén a
padlóküszöb elhagyható. (max. toleranciaérték: 5 mm)
Kiegészítők    
Személybejáró ajtó ajtócsukóval S200

° S200: max. 23,9 m²-ig
Sa: max. 46,5 m²-ig

° S200: max. 23,9 m²-ig
Sa: max. 46,5 m²-ig

° S200: max. 23,9 m²-ig
Sa: max. 46,5 m²-ig

° S200: max. 23,9 m²-ig
Sa: max. 46,5 m²-ig

Befelé (nyílásba) nyíló 
személybejáró ajtó

°

°

°

-

Kampós zár

°

°

°

°

Mennyezeti szerelés alacsony áthidalóval

°

°

°

°

Elektromos nyitóberendezés

Kérésre

Kérésre

Kérésre

Kérésre

Üvegezés

-

-

-

-

Szabadonfutó funkció

-

-

-

-

Mennyezeti/nyílásburkolatok

-

-

-

-

LD =szabad átjáróméret   OKF = kész padlószint   * = alapkivitel   ° = opcionális   — = jelenleg nem rendelhető      Minden méret mm-ben.

1) A tartóelem és az épületszerkezet közötti rést fugázni szükséges.

Kiemelkedő tulajdonságok

OPTIMÁLIS TŰZVÉDELMI RENDSZER


Egységes felület nagyméretű kapuknál is
A sima, egységes felület (1) és az elülső oldalon nem látható panelcsatlakozások egységes, elegáns megjelenést biztosítanak. A síkban futó megjelenést a vezetősín és a súlykamra borítása teszi teljessé.


Karcsú személybejáró ajtók
A küszöb nélküli személybejáró ajtók (2) a kapu csukott állapotában könnyű, akadálymentes áthaladást tesznek lehetővé. Keskeny kereteikkel elegánsan belesimulnak
a kapufelületbe.
 

Könnyen szerelhető, felhasználóbarát
A Novoferm tolókapuk (3) számos előnnyel bírnak. Alkalmasak alacsony szemöldökhöz vagy mennyezethez történő rögzítéshez. Használatuk során, sokszor nagy méretük ellenére is, kiváló működési tulajdonságokkal rendelkeznek. Az elemes szerkezeti kialakításnak köszönhetően könnyen szállíthatók és könnyen szerelhetők.


Egy kapu - számtalan variáció
Rendeljen 1- vagy 2-szárnyú tűzgátló tolókaput a helyiség adottságainak megfelelően, és válasszon a számtalan kiegészítő közül.
A kapunak normál üzemmenetben nyitva kell lennie? A fali elektromágnes (4) nyitott állapotban stabilan rögzíti a kaput, a kioldó mechanizmus pedig tűz esetén gondoskodik
a biztonságos záródásról. Az alapfelszereltség részét képező optikai és hangjelző eszközök további biztonságot nyújtanak a nyitva tartott kapuk számára.


Tűzgátlás küszöb nélkül
A Novoslide Industry tolókapuk tűz- és füstgátlásra együttesen is alkalmasak. Amennyiben a padló kialakítása megengedi, a kapu teljes mozgásmezőjében és parkolópályáján (5) elhagyható a küszöb használata.
 

Novoslide Industry Ei2 120 tűzgátló tolókapu


A tűzgátló tolókapuk az épületek tűzszakasz határait választják el egymástól. A Novoslide Industry tűzgátló tolókapu könnyű szerelhetősége és kiváló tűzvédelmi tulajdonsága
miatt tökéletesen teljesíti ezt a feladatot. A gyárilag előre összeszerelt komponenseknek köszönhetően a kapu telepítése gyorsan és egyszerűen végezhető el. Már a panelek vezetősínbe állításával is időt takarít meg, mivel minden egyes panelre a görgő előre fel van rögzítve.

A tűzállóságot tekintve is jól teljesít a Novoslide Industry, hiszen még Ei2120 perces kategóriában is megfelelt a termék. 120 perc elteltével a vizsgáló kemencében a hőmérséklet jóval meghaladja az 1000 ° C-ot, ami nemcsak a kapunak, de a falazatnak is rendkívül megterhelő. Még ilyen extrém körülmények között is csak minimálisan deformálódhat a kapu és teljesítenie kell a helyiségek lezárására és a hőszigetelésre vonatkozó szigorú követelményeket.
 

 

Európai szabvány

Európai termékszabvány


A tűzgátló tolókapukra a harmonizált EN 16034 (tűzgátló és/vagy füstgátló ajtók termékszabványa) és az EN 13241:2003+A2:2017 (ipari, kereskedelmi és garázsajtók/kapuk nem tűz- és/vagy füstgátló teljesítőképességi jellemzőinek termékszabványa) vonatkozik. A tűzgátló szerkezetek osztályozását pedig, a tűzállósági vizsgálatok eredményeinek felhasználásával az EN 13501-2 (Épületszerkezetek és építési termékek tűzvédelmi osztályozása. 2. rész: Osztályba sorolás a tűzállósági vizsgálatok eredményeinek felhasználásával, a szellőzőrendszerek kivételével) szabályozza.

A NovoSlide Industry tűzgátló tolókapukat úgy fejlesztették, hogy ezeknek a szigorú szabványi követelményeknek megfeleljen.

Az építési termékek forgalmazására vonatkozó 305/2011/ EU európai parlamenti és tanácsi rendelet előírja, hogy harmonizált szabvánnyal lefedett építési termék az Európai Unión belül csak CE-jellel és teljesítménynyilatkozattal (Declaration of Performance (DOP)) forgalmazható. 

Ez a tűzgátló tolókapuk esetében is a nemzeti és európai szabályozások együttélési időszakának letelte után kötelező érvényű. A CE-jellel ellátott termékek az Európai Unió összes tagállamában értékesíthetők. 

Az európai szabványok mellett természetesen a vonatkozó és nem harmonizált nemzeti építési előírásokat is be kell tartani, amelyek megkövetelése mindig az adott ország hatáskörébe tartozik.

 

Teljesítménynyilatkozat (DOP)  /  tűzvizsgálat: a kapu kinézete 130 perc után

Tolókapu részletek

 

MŰSZAKI LEÍRÁS

A Novoslide Industry tűz- és füstgátló tolókapukat magas funkcionalitás, vonzó kialakítás és innovatív részletek jellemzik. Számos beépítési szituációhoz alkalmazhatók, és harmonikusan illeszkednek az ipari és kereskedelmi épületek egyedi építészeti koncepcióihoz.


Minősítés
Minden kapuváltozat tűzgátló tulajdonságait EN 1634 vizsgálati szabvány szerint tesztelték és EN 16034, ill. EN 13241 termékszabványok szerint minősítették. A kapuk EN 12605 szabvány szerint végzett C3-as tartós használhatósági, önzáródási képességgel (50.000 nyitászárási ciklus), valamint opcionálisan Sa (tömören záró, 3 oldali tömítéssel) vagy S200 (füstzáró, 4 oldalon körbefutó tömítéssel) füstgátló minősítéssel is rendelkeznek.


Beépítés
A fal típusának, ill. a rögzítés módjának meg kell felelnie a minősítésben szereplő követelményeknek (lásd az egyes kaputípusok leírásánál). A padlónak a kapu környezetében nem éghető anyagból kell készülnie. (A1 építőanyag osztály).
Figyelem: Ha a tolókapu parkolómezőjét a helyszínen elburkolják, a karbantartási munkák elvégzéséhez revíziós nyílásokat kell biztosítani.


Áthidalótípusok
• Standard kivitel: fali szerelés normál áthidalóra, szükséges áthidaló magasság min. 250 mm
• Egyedi kivitel: mennyezeti szerelés alacsony áthidalóval, szükséges áthidaló magasság min.150 mm
• Egyedi kivitel: mennyezeti szerelés kifutó födémre, szükséges blendemagasság min. 150 mm


Kapulap
Kétoldali, gépileg hengerelt, 0,75 mm vastag tüzihorganyzott finomlemez borítású kapulap tűzgátló szigeteléssel. A kapulap azonos magasságú egységpanelekből áll, melyek a fémburkolat összeragasztásával sima, egységes felületet képeznek. (A szállítás panelekre szétszerelt állapotban történik.)


Tömítés
3-oldalon körbefutó labirintus-tömítőprofil. A panelek között kiegészítő tömítés az Sa füstgátlási követelmény teljesítésére. Nincs szükség a panelillesztések külön tömítésére. Opcionálisan 4 oldalon körbefutó tömítéssel, S200 füstgátló minősítéssel is kapható.


Vasalat
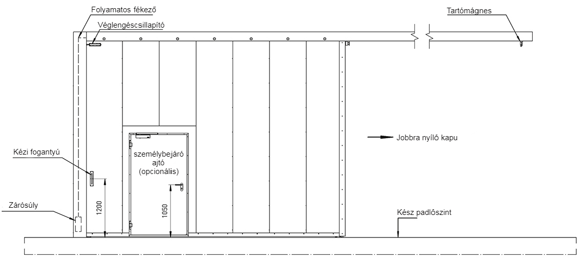
Zárt vezetősín-rendszer, panelenként egy-egy teherviselő görgővel, melyek a kapu csendes futását biztosítják. Hidraulikus véglengéscsillapítóval, horganyzott súlykamrás ellensúllyal, belső padlóvezetővel, rozsdamentes kézi- és kagylófogantyúval.


Folyamatos fékező
A zárási sebesség szabályozására. 0,08 és 0,3 m/mp között fokozatmentesen beállítható.
 


LEHETSÉGES VÁLTOZATOK/EGYEDI KIALAKÍTÁSOK
 

Kirögzítő és kioldó rendszer
Folyamatosan nyitva tartott kapuk esetén:
Tűzjelző, standard kirögzítő rendszer tartómágnessel, központi vezérlővel, integrált nyomógombos vészkapcsolóval, optikai és akusztikus riasztással. Tűz esetén a rendszer kiold és a kapu automatikusan bezáródik. Egyéb esetben csak a nyomógomb megnyomásával záródik. Opcionálisan a kapu a helyszíni tűzjelző rendszeren keresztül is vezérelhető.
Figyelem:
Telepítés után az üzembentartónak saját költségén kell megszerveznie a kirögzítő rendszer üzembehelyezését és annak további, időszakos, szakember által végzett ellenőrzését. Igény szerint külön szerződés keretében vállalkozunk termékeink karbantartására.


Személybejáró ajtó és füstgátló személybejáró ajtó
A kapulapba 2 panel közé beépített személybejáró ajtó EI2 30, EI2 60, EI2 90, EI2 120 perces tűzgátlással, standard kivitelben Sa füstgátlással (3-oldali tömítéssel), opcionálisan S200 füstgátlással, (4-oldalon körbefutó tömítéssel), mérete: 1.000 x 2.000 mm, standard kivitelben küszöb nélkül, min. kapumagasság: 2.250 mm, min. kapuszélesség: 2.500 mm. Vasalat: 2 db 3-részes pánt, 1 db felső ajtócsukó DIN EN 1154 szerint, 1 db bevéső PZ váltózár, opcionálisan pánikfunkcióval, rozsdamentes, rövid címes kilincsgarnitúra. Opcionálisan befelé nyíló kivitelben is EI2 30-tól EI2 90 perces tűzgátlással.

Elektromos hajtás
Különösen nagyméretű kapuk esetén, melyeknél a kézi mozgatás nagy erőkifejtést igényel, javasoljuk az elektromos működtetést. A vezérlőegység az új követelményeknek megfelelően füstjelzővel is el van látva. A nyitás egy külön kapunyitó nyomógomb megnyomásával, míg a zárás vagy a kirögzítő rendszer vésznyitó gombjának, vagy egy különálló kapuzáró gomb megnyomásával történik. Tűz esetén a vezérlés kiold és a kapu a zárósúly segítségével automatikusan bezáródik.
Figyelem: Elektromos hajtású kapuk esetén a szükséges felülvizsgálatokat az üzembentartó költségére képzett szakemberrel kell végeztetni.


Kapulap felület
Standard kivitelben horganyzott, igény szerint alapozott, vagy a kapulap panelek RAL 7032 szürke színre, ill. választott RAL színre porszórva.


Kampós zár
Csukott állapotban tartott kapu bezárására rugós reteszelésű, PZ zárral, cilinderbetéttel. Állapotjelzővel is összeköthető.


Kifutó födémre történő szerelés
Szükséges blendemagasság: 150 mm

Előnyök pontokba szedve:

  • EI 30, EI 60, EI 90 és EI 120 tűzvédelmi osztályokban.
  • Jelentősen egyszerűbb szerelhetőség, különösen egy új tömítőrendszernek köszönhetően
  • Teljes körű szállíthatóság egy- és kétszárnyú, füstgátló változatban is, akár EI 120 tűzvédelmi osztályig.
  • Standard kirögzítő rendszer tartómágnessel, központi
    vezérlővel, integrált nyomógombos vészkapcsolóval,
    optikai és akusztikus riasztással
  • Zárósúly, vagy tartómágnes, hátsó, oldalra elvezetett kivitelben is (pl. ha a kapunak a parkolóállásban kis hely áll rendelkezésre).
  • Gyors és egyszerű szerelhetőség
  • A gyárilag előre összeszerelt komponensek a helyszíni beépítéskor sok időt takarítanak meg
  • Minden panelre előre rá van szerelve a görgő, így a sorbaállításuk gyors és egyszerű

     

  • Sa és S200 füstgátló kivitelnél nincs szükség a panelek közötti rések szilikonozására, mert az illesztések gyári tömítéssel rendelkeznek
  • Befelé (nyílásba) nyíló személybejáró ajtó EI 90-ig

Műszaki adatok

Tervezési segédletek

EI2 30/ EI2 60/ EI2 90/ EI2 120 – 1-szárnyú kivitel

 

EI2 30/ EI2 60/ EI2 90/ EI2 120 – 2-szárnyú kivitel

 



LD = szabad átjáróméret OKF = kész padlószint Minden méret mm-ben van megadva.

 

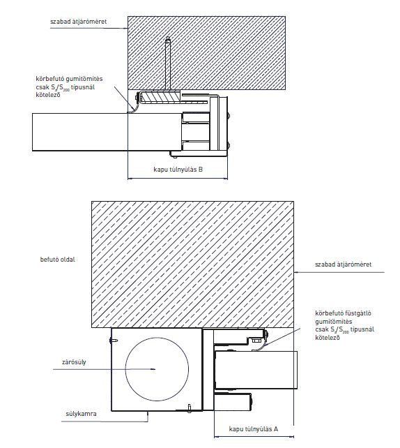
FÜSTGÁTLÓ KIVITEL

 

SZÜKSÉGES TÚLNYÚLÁSOK - magasság

 

E

F

G

H

K

Szabad nyílás magasság
tól - ig

UK födém – OK sín

UK födém – OK kapulap

furatközép
UK födémtől

UK födém – OK blende

min. födémmagasság

2.000 - 4.560

150

120

190

240

250

4.561 - 6.000 (6.560)

170

140

210

260

270

Minden méret mm-ben van megadva.     UK = alsó él OK = felső él

 

SZÜKSÉGES TÚLNYÚLÁSOK - SZÉLESSÉG

Szabad nyílás szélesség
tól - ig

A

B

 
1.000 - 4.870

150

195

 
4.871 - 6.870

170

215

 
6.871 - 8.500 (8.870)

190

235

Maximális túlnyúlás: 300 mm
(kampós zárnál max. 220 mm)

 

OLDALSÓ HELYIGÉNY STANDARD TÚLNYÚLÁSOK ESETÉN

 

első súlykamra esetén:

hátsó súlykamra esetén:

C

D

C

D

Szabad nyílás szélesség
tól - ig

befutó oldal

parkolómező

befutó oldal

parkolómező

1.000 - 4.870

360

495

180

675

4.871 - 6.870

380

535

200

715


6.871 - 8.500 (8.870)

400

575

220

755

 

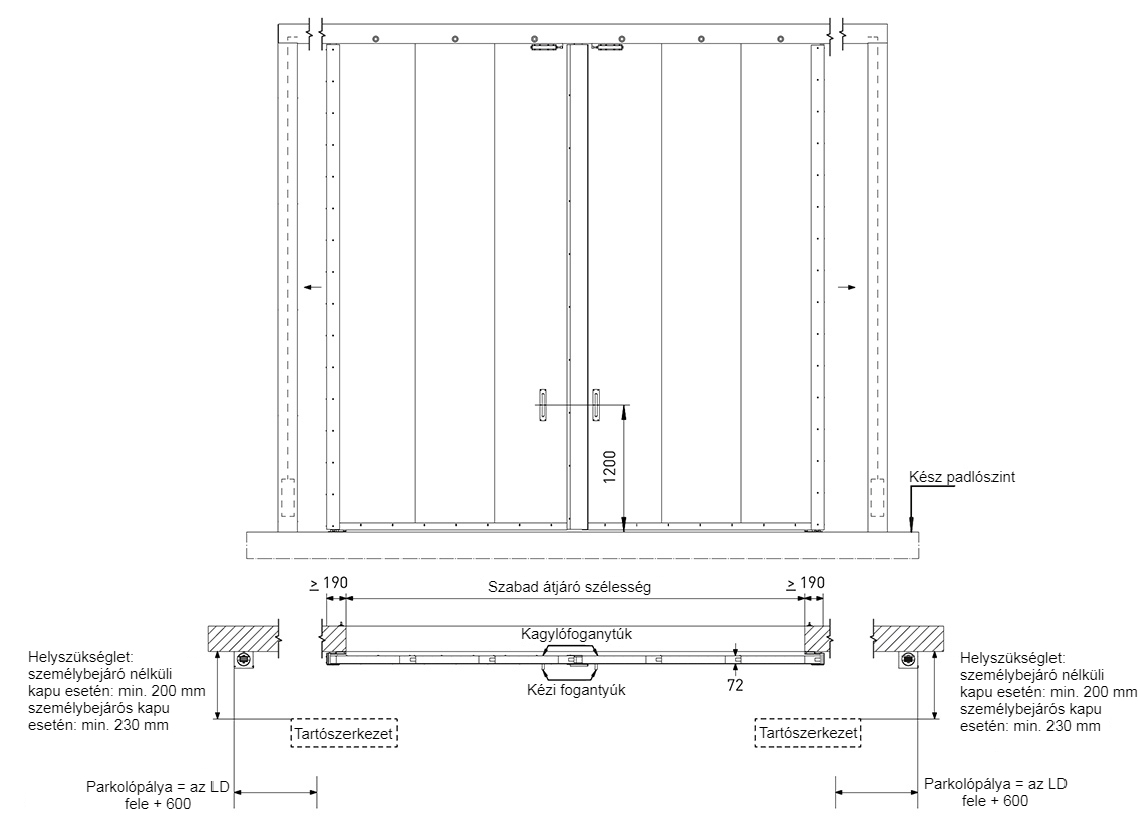
Kaputípusok és nyitásirányok

Kaputípusok

egyszárnyú
 

kétszárnyú
 

Nyitásirányok

egyszárnyú
 

kétszárnyú
 

Rögzítési módok ÉS HELYIGÉNY

Fali szerelés normál áthidalóra
(standard kivitel)

Fali szerelés áthidalóra rejtett füstgátló tömítéssel

Mennyezeti szerelés meglévő, alacsony áthidalóval

Mennyezeti szerelés kifutó födémre blendével

Beépítési lehetőségek - 1-szárnyú tolókapuk

Szükséges tűzgátló falak, ill. minimális falvastagságok 1-szárnyú kapuk esetén

Kaputípus

EI2 30/ EI2 60/ EI2 90

EI2 120

Fali szerelés
normál áthidalóra
(vasbeton)

Mennyezeti 
szerelés

Fali szerelés
normál áthidalóra
(vasbeton)

Mennyezeti 
szerelés

Kapuméret →

 

Faltípus↓

≤ LD 
8.500 x 6.0001)
max. 50 m²

≤ LD 
8.500 x 6.0001);
max. 50 m²

≤ LD 
4.670 x 4.560

≤ LD 
8.500 x 6.0001);
max. 50 m²

< LD 
4.670 x 4.560

≤ LD 
8.500 x 6.0001)
max. 50 m²

kőműves fal 
DIN EN 1996-1-1 szerint
nyomószilárdság > 12
vasbeton áthidaló

 

≥ 1752)

 

≥ 1752)

 

≥ 1752)

 

≥ 2402)

 

≥ 1752)

 

≥ 2402)

betonfal 
DIN EN 1992-1-1 szerint
szilárdság > C12/ C15


≥ 140


≥ 140


≥ 140


≥ 140


≥ 140


≥ 140

pórusbeton falazóblokk 
DIN EN 771-4 szerint
nyomószilárdság 4 
DIN V 4165-100 szerint
vasbeton áthidaló a mozgás- és parkolómezőben

 


≥ 1752)

 


≥ 1752)

 


≥ 1752)

 


≥ 2402)

 


≥ 1752)

 


≥ 2402)

vasalt pórusbeton lapok 
DIN EN 4166 min.
térfogatsűrűség > 0,55 vagy szilárdság: P4.4,
vasbeton áthidaló a mozgás- és parkolómezőben

 


≥ 1752)

 


≥ 1752)

 


≥ 1752)

 


≥ 2402)

 


≥ 1752)

 


≥ 2402)

Acéllal burkolt oszlopok/
Acélgerendák/ tűzállósági osztály
EI 90/ EI 120


A statikai követelmények szerint

Beépítési lehetőségek - 2-szárnyú tolókapuk

Szükséges tűzgátló falak, ill. minimális falvastagságok 2-szárnyú kapuk esetén

Kaputípus

EI2 30/ EI2 60/ EI2 90

EI2 120

Fali szerelés
normál áthidalóra
(vasbeton)

Mennyezeti 
szerelés

Fali szerelés
normál áthidalóra
(vasbeton)

Mennyezeti 
szerelés

Kapuméret →

 

Faltípus↓

≤ LD 
8.500 x 6.0001)
max. 50 m²

≤ LD 
8.500 x 6.0001)
max. 50 m²

≤ LD 
4.670 x 4.560

≤ LD 
8.500 x 6.0001)
max. 50 m²

< LD 
4.670 x 4.560

≤ LD 
8.500 x 6.0001)
max. 50 m²

kőműves fal 
DIN EN 1996-1-1 szerint
nyomószilárdság > 12
vasbeton áthidaló

 

≥ 1752)

 

≥ 1752)

 

≥ 1752)

 

≥ 2402)

 

≥ 1752)

 

≥ 2402)

betonfal 
DIN EN 1992-1-1 szerint
szilárdság > C12/ C15


≥ 140


≥ 140


≥ 140


≥ 200


≥ 140


≥ 200

pórusbeton falazóblokk 
DIN EN 771-4 szerint
nyomószilárdság 4 
DIN V 4165-100 szerint
vasbeton áthidaló a mozgás- és parkolómezőben

 


≥ 1752)

 


≥ 1752)

 


≥ 1752)

 


≥ 2402)

 


≥ 1752)

 


≥ 2402)

vasalt pórusbeton lapok 
DIN EN 4166 min.
térfogatsűrűség > 0,55 vagy szilárdság: P4.4,
vasbeton áthidaló a mozgás- és parkolómezőben

 


≥ 1752)

 


≥ 1752)

 


≥ 1752)

 


≥ 2402)

 


≥ 1752)

 


≥ 2402)

Acéllal burkolt oszlopok/
Acélgerendák/ tűzállósági osztály
EI 90/ EI 120


A statikai követelmények szerint.


1) 7.305 mm szélesség felett a konzolok közötti rögzítési távolságot 500 mm-re kell csökkenteni. 
2) Átmenő csavaros  vagy dübeles rögzítés (10 x 100 mm) a bemenetnél és a fali tömítésnél.
Megjegyzés
Pórusbeton fal esetén a mozgás- és parkolómezőben vasbeton áthidaló szükséges.
Minden méret mm-ben van megadva.

Beépítés

Könnyű összeszerelés

A NovoSlide Industry tűzgátló tolókapuk különösen gyorsan beépíthetők. Az átgondolt műszaki részletek jelentősen felgyorsítják a szerelési folyamatot. Az alábbiakban bemutatunk néhány példát. Minden részletet megtalál a részletes beépítési útmutatóban.

Példák az egyszerű összeszerelhetőségre

Egyszerű felszerelés az egy konzolos rögzítésnek köszönhetően, a zárási és nyitási területen egyaránt 750 mm-es megnövelt rögzítési távolsággal. (> 7.305 mm: 500 mm). Egyszerű tolerancia kiegyenlítés a konzolon és a vezetősínen lévő hosszú furatoknak köszönhetően.

A gyárilag előre összeszerelt komponensek messzemenően megkönnyítik a beépítést. A hőre habosodó tűzgátló intumex szalagok is már előre fel vannak ragasztva.

Minden kapupanelre egy-egy görgő van rögzítve, így a sorbaállításuk rendkívül egyszerű.

A panelek egymáshoz történő rögzítése csavarokkal történik a belső, nem látszó oldalon. (Csavarok távolsága < 625 mm).

Az összes csavarozási pont gyárilag elő van lyukasztva.

Könnyen összeszerelhető, egyszerű drótkötélvezetés az ellensúly mozgatására.

A magasságban állítható alsó lezáró profil segítségével a padló egyenetlenségei könnyen kiküszöbölhetők.

Speciális futógörgő-geometria, mely segítségével a fal- és az áthidaló egyenetlenségei könnyen kiküszöbölhetők.

A vezetősín borítása egyszerűen csavarosan rögzíthető az ellensúly súlykamrájának borításával egy síkban.

Sa és S200 füstgátló kivitelnél nincs szükség beépítéskor külön szilikonos tömítésre a panelek között, mivel a panelillesztések integrált tömítésekkel vannak ellátva. A kivételeket a műszaki adattábla tartalmazza.

Felkeltettük az érdeklődését?

Keressen bennünket a KAPCSOLAT-fülön található elérhetőségeinken.

 

Kapcsolat