Tűzgátló strangajtó-elemek

NovoPorta Premio vastag falcos tűzgátló strangajtó-elemek bel- és kültéri beépítésre, EI2 30 és EI2 90 tűzállósági határértékkel, biztonsági, többcélú és hanggátló funkciókkal is.


Vastag falcos kialakítás
A 64 mm vastag, stabil és kellően merev, vastag falcos egyszárnyú acél strangajtók bel- és kültéri használatra egyaránt alkalmasak és ideális megoldást jelentenek a modern ingatlanépítés számára.


Sokféle funkció
A NovoPorta Premio vastag falcos acél strangajtók minden igényre kínálnak megoldást: tűzgátló, (EI2 90-ig), füstgátló, biztonsági (RC 3-ig) és hanggátló funkciókkal is kaphatók.


Szerelési előnyök 
Egyszerű beépíthetőség pl. falcon keresztüli csavaros rögzítéssel, - gyors hézagkitöltés kőzetgyapot csíkokkal vagy tűzgátló purhabbal.

Novoporta premio tűzgátló strangajtók összehasonlítása és részletei

Novoporta Premio tűzgátló strangajtók - típusösszehasonlítás
Típus

Vastag falc

 EI2 30

 EI2 90

Füstgátló

Hanggátló

Biztonsági
RC2

Biztonsági
RC3

EI2 30-1 
Premio

strangajtó
1 szárnyú

*

*

 

 

*

*

*

EI2 90-1 
Premio

strangajtó
1 szárnyú

*

 

*

*

*

*

*

NovoPorta Premio EI30 / Ei90 tűzgátló strangajtók - részletek


Vasalat:
1 db 3-részes konstrukciós pánt és 1 db rugós pánt, (Ei90 típusnál: rugós pánt max. 1 m² -ig, a felett 2 db 3-részes konstrukciós pánt és felső ajtócsukó), RAL 9016 fehér színre porszórva; opcionálisan rozsdamentes vagy 3D-s állítható pántok; 1750 mm magasságig 1 db kiemelésgátló biztonsági csap; biztonsági PZ-váltózár,  fekete rendszerkilincs; cilinderbetét nélkül, mely a megrendelő által biztosítandó. (mérete: 85 mm, 35/50 mm)

Ajtólap standard kivitelben belső megerősítéssel felső ajtócsukóhoz a pánt felőli oldalon.

Tok:
Standard kivitelben: saroktok 4-oldali gumitömítéssel, lemezvastagság: 2,0 mm, tükörszélesség: 50 mm, opcionálisan válaszfaltok, utólag szerelhető tok, profilszám: 2140B, ellentok vagy blokktok

Küszöb:
Standard kivitelben: B1 típus 4-oldalon körbefutó kerettel; Választható: B3 típus

Ajtólap és tok standard kivitelben: horganyzott, alapozott RAL 9016 fehér színben
Opcionális felület: tetszés szerint választott RAL színben


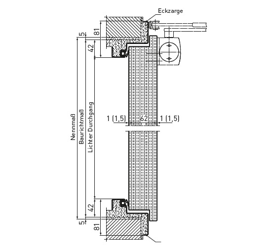
NovoPorta Premio EI2 30 / EI2 90 tűzgátló strangajtók

Vízszintes metszet

Függőleges metszet

További kivitelek:

  • Tűzgátló üvegezéssel (felső ajtócsukó kötelező tartozék)
  • Füstgátló kivitelben (felső ajtócsukó kötelező tartozék: > SZ x M 984 x 984 mm)
  • Hanggátló kivitelben (laborérték tele lap esetén: EI2 30: 43 dB RWP , EI2 90: 44 dB RWP)
  • Biztonsági kivitelben RC2 / RC3

Előnyök pontokba szedve:

  • Egyszárnyú, tűzgátló acél strangajtó-elem bel-és kültéri beépítésre
  • EN 1634-es tűzállósági vizsgálati szabvány alapján bevizsgálva, Európai Műszaki Értékeléssel: ETA-17/0443
  • 64 mm vastag, 1,0 mm (opcionálisan 1,5 mm) lemezborítású, vastag falcos ajtólap, 4-oldalon körbefutó acéltokkal
  • Anyaga: horganyzott, alapozott RAL 9016 fehér színben

Műszaki adatok

Műszaki adatok NovoPorta Premio EI 30 / EI90 strangajtók
Ajtótípus

NovoPorta
Premio 
EI2 30-1
strangajtó

NovoPorta
Premio 
EI2 90-1
strangajtó

Engedélyezett méretek

 

 

Rendelési méret (BRM)                                  Szélesség min. - max.

                                                                            Magasság min. - max

500 - 924 

715 - 924

500 - 924 

715 - 924

   
4 oldalon körbefutó tok (B1 küszöb)

*

*

További 4 oldalon körbefutó változatok - opcionálisan küszöb nélkül is - lásd a megfelelő termékoldalon EI2 30 és EI2 90                    Rendelési méret max.

1.375 x 2.500 

1.375 x 2.500 

 

 

 

Ajtólap

 

 

Ajtólap vastagsága kb.

64

64

Lemezvastagság kb.

1,0

(opcionálisan 1,5)

1,0

(opcionálisan 1,5)

Nyitásirány

balos/jobbos

balos/jobbos

 

 

 

Falazat

 

 

Kőműves fal

> 115

> 175

Beton

≥ 100

≥ 140

Pórusbeton

≥ 150

≥ 175

Vasbeton pórusbeton falpanelek

≥ 150

≥ 175

F30-A/EI30 (F90-A/EI90) acélvázas tűzgátló gipszkartonfal
 (DIN 4102, 4. rész, 10.2. táblázat vagy EN 13501-2 szerint)

≥ 100

≥ 100

F30-B/EI30 favázas tűzgátló gipszkartonfal
(DIN 4102, 4. rész, 10.3. táblázat vagy EN 13501-2 szerint)

≥ 130

-

További engedélyezett szerelt faltípusok min. F30-A/F30-B, EI90-A/EI90
ajánlatkérésre

*

*

EI30 strangajtó esetén: burkolt acéltartók/acélgerendák min. F60-A/R60, vagy burkolt favázas szerkezet min. F60-B/R60 
EI90 strangajtó esetén: burkolt acéltartók/acélgerendák min. F90-A vagy min. R90 besorolással

*

*

 

 

 

Kivitelek

 

 

Tűzgátló - EN 1634-1 szerint

*

*

Tűzgátló üvegezés ¹)

*

*

Füstgátló EN 1634-3 szerint

*

*

Hanggátló (B1 4-oldali kerettel, üveg nélkül) 
(laborérték DIN EN ISO 717-1 szerint)

kb. 
43 dB RwP

kb. 
44 dB RwP

Biztonsági DIN EN 1627 szerint
(tömör ajtólap, mindkét oldalon tesztelve)  

RC 2 
RC 3

RC 2 
RC 3

 

 

 

F30/F90 üvegezés

 

 

Szögletes, standard méretű üvegkivágások látszó csavarozású üvegezőkerettel
alapkivitel: horganyzott, porszórt alapozott RAL 9016 színben, opcionálisan rozsdamentes takaróprofillal
Minimális frízszélesség EI2 30: 3-oldalon: ≥ 150 mm, zár felőli oldalon ≥ 180 mm
Minimális frízszélesség EI2 90: felül és a pánt felőli oldalon: ≥ 200 mm, zár felőli oldalon ≥ 220 mm, lábazatmagasság: ≥ 300

*

*

Köralakú szabvány méretű üvegkivágások
Üvegezőkeretek és min. frízszélességek: lásd a standard szögletes üvegkivágásoknál

*

*

Egyedi méretű üvegkivágások
Üvegezőkeretek és min. frízszélességek: lásd a standard szögletes üvegkivágásoknál

*

*

Tanúsítás

 

 

Beltéri ajtók: ETA 17/0443 (Európai Műszaki Értékelés)

EI2 30 / CE

EI2 90 / CE

Kültéri ajtók: CE-jelölés EN 16034 és EN 14351-1 szerint

EI2 30 / CE

EI2 90 / CE

* rendelhető   - nem rendelhető

 

 

¹) Üvegezés csak beltéri felhasználás esetén. (Az üveg UV-sugárzástól és közvetlen halogén-fénytől védendő, csak –20 +45˚C közötti hőmérséklettartományban használható.) 
Az adatok 1000 x 2000 mm-es ajtóméretre érvényesek. / Minden megadott üvegméret a tiszta üvegméretre vonatkozik.
Minden méret mm-ben van megadva. BRM = beépítési (rendelési) méret RAM = tok külméret    LD = szabad átjáróméret

 

 

Felkeltettük az érdeklődését?

Keressen bennünket a KAPCSOLAT-fülön található elérhetőségeinken.