NovoSlide tolóajtórendszerek

Fa- és üvegajtókhoz


Változatos kiviteli megoldások a legmodernebb vasalat-rendszerekkel, a legmagasabb igények szolgálatában
Az egyre növekvő lakásárak és bérleti díjak miatt a kis lakások iránti érdeklődés folyamatosan nő. Az ilyen kis alapterületű otthonokban kiemelt hangsúlyt kap az optimális térkihasználás, a hatékonyabb, ugyanakkor kényelmes és rugalmas, de főleg rendezett lakótér kialakítása. 

Válassza a NovoSlide Wall tolóajtórendszereket az optimális helykihasználás érdekében.

 

Tolóajtók - típusáttekintés

NovoSlide Wall
fal előtt futó tolóajtórendszer

NovoSlide Pocket
falban futó tolóajtórendszer

NovoSlide Frame
acéltok fal előtt futó tolóajtóhoz

Tolórendszer típusok jellemzői

NovoSlide Pocket

FALBAN FUTÓ TOLÓAJTÓRENDSZER


A fa vagy üvegajtókhoz használható NovoSlide Pocket tolóajtórendszer zökkenőmentesen illeszkedik a falnyílásba. Egy méretre szabott fémdobozból, egy stabil alumínium futósínből és egy hozzá tartozó szerelvénycsomagból áll, melyhez opcionálisan acéltok is rendelhető.  A NovoSlide Pocket rendszer mind magánlakásokba, mind középületekbe kitűnő választás.
A tolóajtórendszert gipszkartonfalba történő beépítésre tervezték, és 610 mm-től 1235 mm-ig terjedő szabványos ajtólap szélességgel kapható.

Egyedi méretek ajánlatkérésre!

SZERELÉSI ELŐNYÖK

  • a kevés alkotóelemnek köszönhetően gyorsan összeszerelhető
  • minden szerelési tartozékot tartalmaz, beleértve a helyszíni gipszkarton burkolathoz szükséges csavarokat is
  • könnyű szállíthatóság a praktikus kartoncsomagolásnak köszönhetően
  • megfordítható alumínium vezetősín
  • állítható ajtólap-parkolópozíció
  • méterjel az egyszerű szereléshez
  • magasságkiegyenlítés opcionálisan kérhető állítható lábakkal
  • előre összeszerelt egységként is kapható

KÉNYELMES HASZNÁLAT

  •  2-oldali nyitás-zárás csillapító 80 kg-os ajtólap súlyig
  • nincs szükség végállásütközőre, a csillapító finoman állítja meg az ajtólapot
  • csendes működés a golyóscsapágyas görgőrendszernek köszönhetően
  • fa- vagy üvegajtókhoz, további választható vasalatokkal


OPCIONÁLISAN RENDELHETŐ

  • acéltokkal vagy tok nélküli kivitelben Novoferm gipszkarton takarással vagy vevő által biztosított fatokkal
  • modern mágneses hajtás, vezérelhető “touch-to-open” funkcióval, érintésmentes nyomógombbal, radarérzékelővel vagy App-on keresztül
NovoSlide Wall

FAL ELŐTT FUTÓ TOLÓAJTÓRENDSZER


A NovoSlide Wall tolóajtórendszer optimális kezelhetőségével és vonzó kialakításával nyűgözi le a felhasználókat.

SZERELÉSI ELŐNYÖK

  • stabil futósín-konstrukció
  • egyszerű fali szerelés az előfúrt alumíniumprofilnak köszönhetően
  • klipszes alumínium burkolat
  • komplett szerelőcsomag az ajtók rögzítéséhez, pl. szorítóprofilok üvegajtókhoz

KÉNYELMES HASZNÁLAT

  • 2-oldali nyitás-zárás csillapító 80 kg-os ajtólap súlyig
  • nincs szükség végállásütközőre, a csillapító finoman állítja meg az ajtólapot
  • csendes működés a golyóscsapágyas görgőrendszernek köszönhetően
  • Deluxe padlóvezető aluprofil és golyóscsapágyazott műanyag görgők
  • opcionálisan modern mágneses hajtás, vezérelhető “touch-to-open” funkcióval, érintésmentes nyomógombbal, radarérzékelővel vagy App-on keresztül

VÁLTOZATOS KIALAKÍTÁSI LEHETŐSÉGEK

  • vevő által biztosított fa- vagy üvegajtókhoz
  • számos választható kiegészítő szerelvény
  • kőműves vagy gipszkarton falakhoz
  • ajtólap szélesség már 580 mm-től
  • futósín max. hossza: 5.800 mm

UNIVERZÁLIS FELHASZNÁLÁS

  • magánlakásokba vagy középületekbe
  • felújításhoz vagy új építkezéshez
  • A modern alaprajzokhoz készült tolóajtók mozgásteret biztosítanak, értékes helyet takarítanak meg és egyben teret teremtenek.
NovoSlide Frame

FAL ELŐTT FUTÓ TOLÓAJTÓRENDSZER, BEÉPÍTETT ACÉL ÁTJÁRÓTOKKAL


A NovoSlide Frame tolóajtó rendszer beépített acéltokkal és oldalsó bevezető profillal kiválóan alkalmas nagy igénybevételnek kitett és forgalmas átjárókhoz.
 

VÁLTOZATOS KIALAKÍTÁSI LEHETŐSÉGEK

  • vevő által biztosított fa- vagy üvegajtókhoz
  • számos választható kiegészítő szerelvény
  • kőműves vagy gipszkarton falakhoz
  • ajtólap szélesség már 580 mm-től
  • futósín max. hossza: 5.800 mm
  • válaszfaltok ütközőprofillal, 1-részes, vagy utólagos beépítéshez 2-részes kivitelben 
  • számos kialakítási lehetőség, pl. felül- vagy oldalvilágítóval
  • kétszárnyú tolóajtós megoldásokhoz is
  • különböző választható tokprofilok, pl. íves, árnyéknútos
  • opcionálisan 2-oldali nyitás-zárás csillapítóval 80 kg-os ajtólap súlyig
  • opcionálisan kiváló minőségű futósínnel 100 kg feletti ajtókhoz

Felhasználási területek

  • kórházak, klinikák vagy idősotthonok betegszobái
  • orvosi rendelők
  • diákotthonok
  • közigazgatási épületek
  • szállodák és éttermek
  • de természetesen magán lakóépületekhez is

SZERELÉSI ELŐNYÖK

  • a vezetősín könnyen átvizsgálható
  • gyárilag kialakított furatok a vezetősín tartódobozának rögzítéséhez
  • külön szállított vezetősín a helyszíni gyors felszereléshez
Novoferm rapid mágneses tolóajtó hajtás

NOVOSLIDE WALL RAPID

  • falra vagy opcionálisan mennyezetre szerelhető
  • mellékelt ábra: kőműves fal, fa ajtólap
  • fa ajtólapok esetén mindig golyóscsapágyas padlóvezető görgőkkel és süllyesztett szerelvénnyel

NOVOSLIDE POCKET RAPID

  • kétrészes acéltokkal, hegesztett vagy szétszerelt, horganyzott, alapozott, vagy opcionálisan GK-borítással, üveg ajtólapok esetén a nyílás szélessége keskenyebb
  • vevő által biztosított fatokhoz is
  • mellékelt ábra: gipszkartonfal, fa ajtólap

NOVOSLIDE FRAME RAPID

  • saroktokkal vagy egy- vagy kétrészes, horganyzott és alapozott válaszfaltokkal
  • számos kiviteli változat
  • mellékelt ábra: kőműves fal, fa ajtólap, 1-részes válaszfaltok

Műszaki adatok

NOVOSLIDE Pocket - műszaki adatok

NOVOSLIDE POCKET

A NovoSlide Pocket tolóajtórendszer a beépítéshez szükséges összes alkatrészt tartalmazza.

  • opcionálisan fa- vagy üvegajtókhoz
  • opcionálisan kartoncsomagolásban / vagy előszerelt elemekkel (igény szerint)

A tolóajtórendszer elemei:
1 x rendszerelem / méretre előre összeállítva
1 x megfordítható alumínium vezetősín
1 x padlóvezető profil fa vagy üveg ajtólaphoz
1 x golyóscsapágyas dupla görgős kocsi mindkét oldalon lágy záráshoz 
1 x golyóscsapágyas dupla görgős kocsi beépített tisztítókefével 
1 x vasalatcsomag fa vagy üveg ajtólaphoz
1 x csavarkészlet az elemek összeszereléséhez 
1 x csavarkészlet a gipszkarton burkolathoz 
1 x szerelési segédeszköz a burkolathoz 
1 x szerelési útmutató

Rendelhető ajtólapméretek


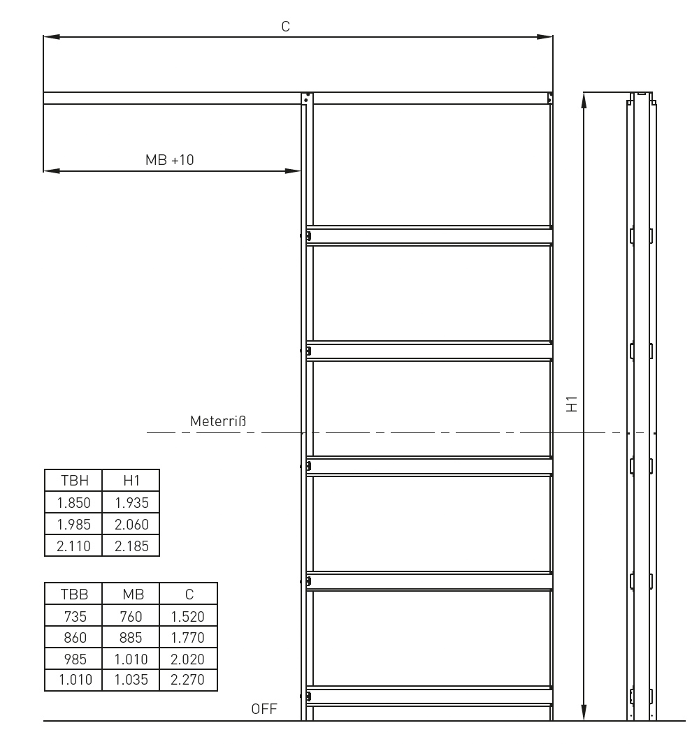
Szélesség: 610 / 735 / 860 / 985 / 1.110 / 1.235 mm 
Magasság: 1.985 / 2.110 / 2.235 mm
GK. falvastagság: 125 mm / 150 mm

vastag betűvel jelölt méretek = gyári raktárkészletről

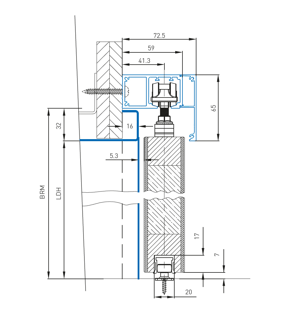
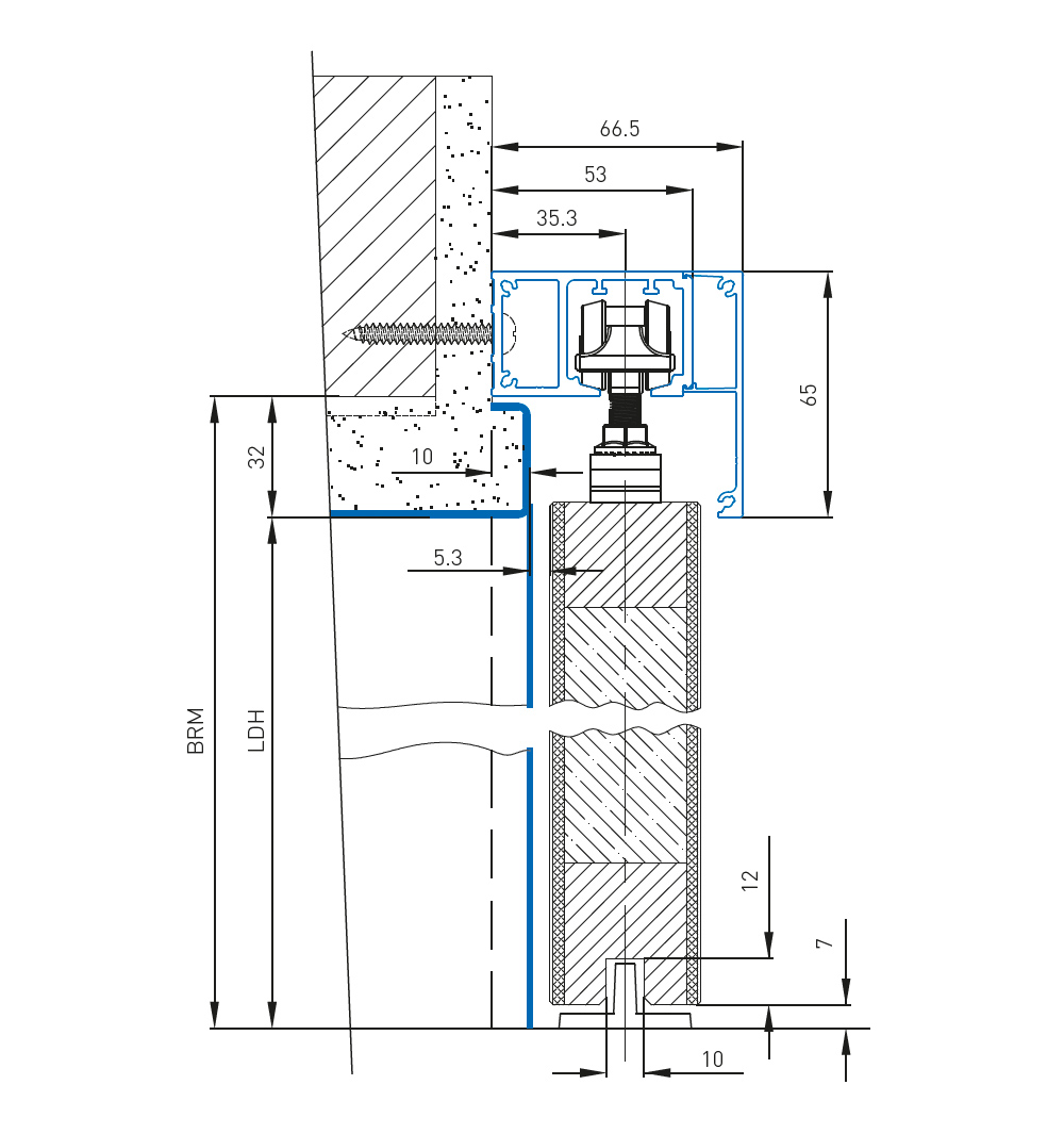
A sínrendszer 610 mm szélességtől kétoldali nyitás-zárás csillapítással rendelkezik 80 kg-os ajtólap súlyig. Az ajtólap végpozíciója az aktivátorok egyszerű elhelyezésével a futósínben állítható be, és utólag is módosítható. A függőleges profilokba integrált méterjelölés megkönnyíti a kész padlószinthez történő beállítást.

Magasságkiegyenlítés opcionális állítható lábakkal. 
Ajtólap vastagság faajtók esetében max. 40 mm, üvegajtók esetében 8 mm vagy 10 mm.

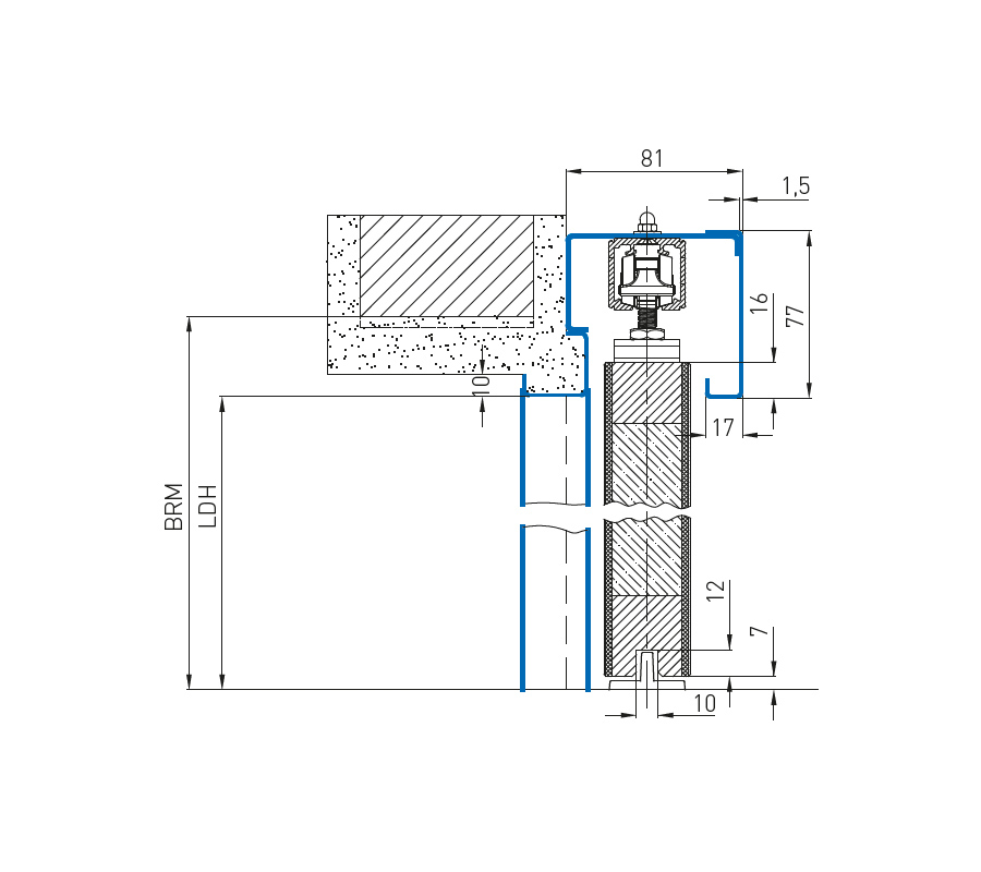
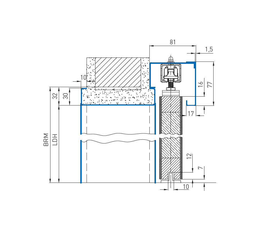
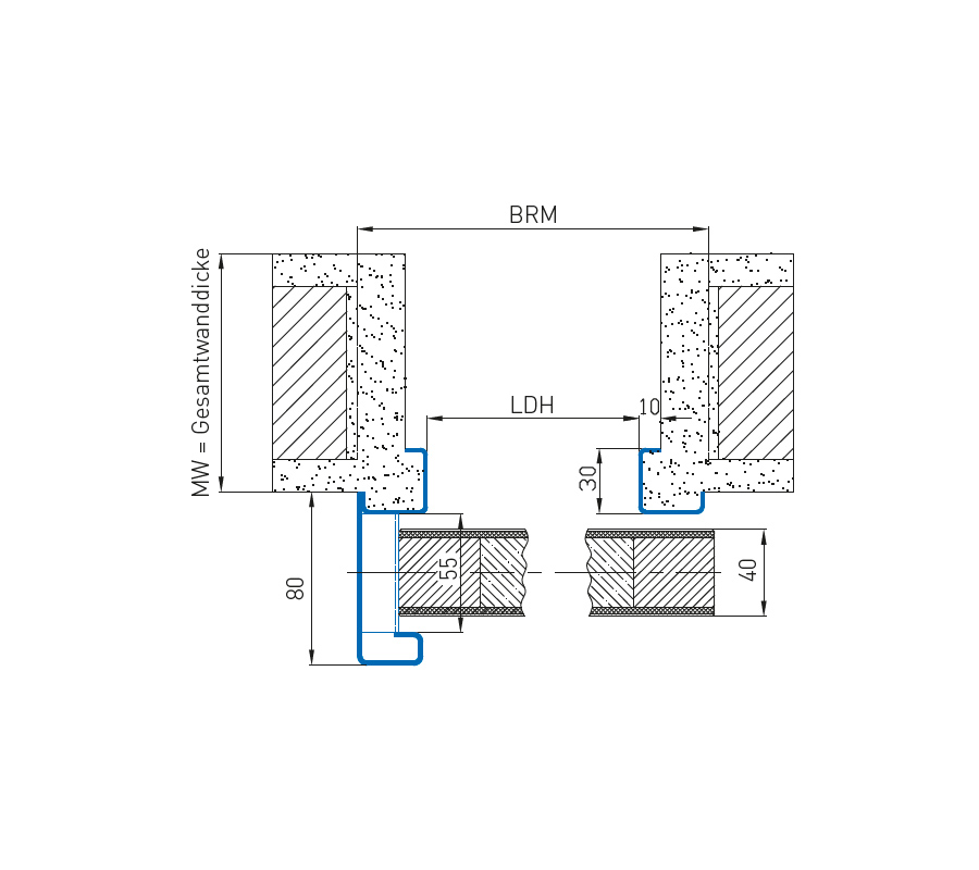
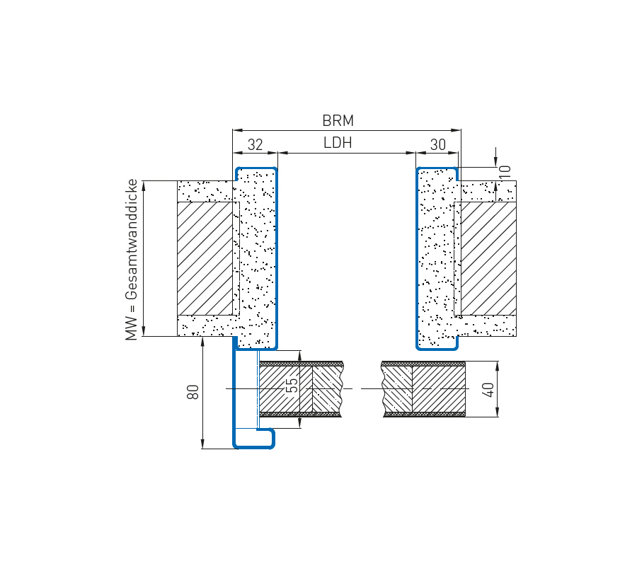
Vízszintes metszet: NovoSlide Pocket Novoferm acéltokkal  (ábra felső rész) vagy alternatívaként Novoferm gipszkarton burkolattal (ábra alsó rész); fatokkal is lehetséges.

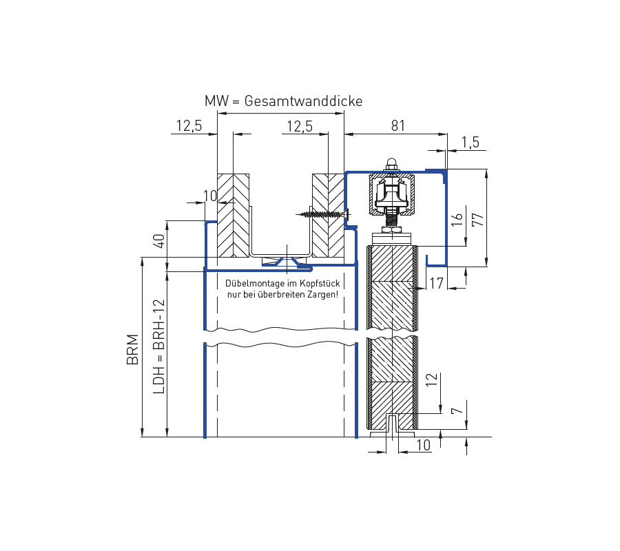
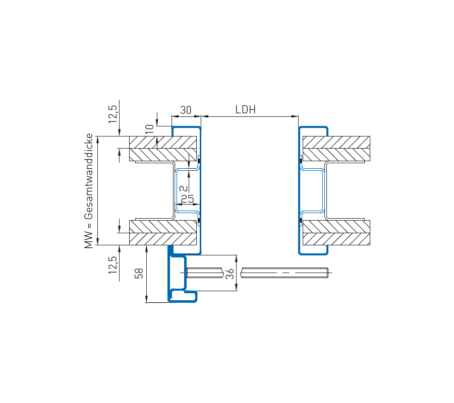
NovoSlide Pocket, profilelrendezés; TBH = ajtólap magassága, TBB = ajtólap szélessége, MB = szerelési szélesség

Függőleges metszet: NovoSlide Pocket, GK-vborítással

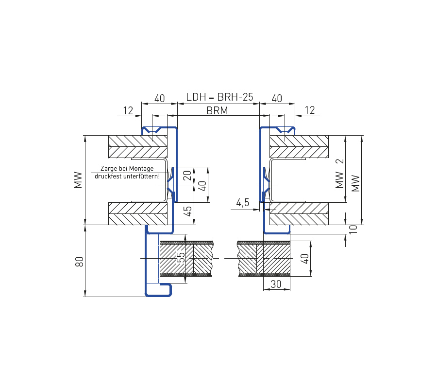
NOVOSLIDE WALL - műszaki adatok

NOVOSLIDE WALL

A NovoSlide Wall tolóajtórendszer a beépítéshez szükséges összes alkatrészt tartalmazza.

A tolóajtórendszer elemei:
1 x vezetősín profil
1 x padlóvezető fa vagy üveg ajtólaphoz
1 x golyóscsapágyas dupla görgős kocsi kétoldali nyitás-zárás csillapítással
1 x golyóscsapágyas dupla görgős kocsi beépített tisztítókefével 
1 x szerelvénycsomag fa vagy üveg ajtólaphoz
1 x klipszes alumínium burkolat, (opcionálisan rozsdamentes acél)
2 x műanyag végzáró sapka 
1 x apró alkatrészek és szerelési tartozékok 
1 x szerelési útmutató 

A faltól való távolság kiegyenlítése érdekében, pl. helyszíni lábazati szegélylécek / ajtókeretek / kapcsolók vagy Smarthome panelek esetén, 47 mm, 53 mm és 59 mm profilszélességeket kínálunk.

Rendelhető profilhosszúságok

2.050 / 2.500 / 3.500 / 5.800 mm

A sínrendszer 580 mm szélességtől kétoldali nyitás-zárás csillapítással rendelkezik 80 kg-os ajtólap súlyig. Az ajtólap végpozíciója az aktivátorok egyszerű elhelyezésével a futósínben állítható be, és utólag is módosítható. A profil egymástól 250 mm-es távolságban van előfúrva.

Ajtólap vastagság faajtók esetében max. 40 mm, üvegajtók esetében 8 mm vagy 10 mm.

A beépítendő ajtólap méretét a beépítési útmutatóban szereplő táblázat szerint számítható ki.

 


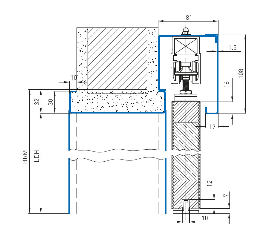
NovoSlide Wall, profilszélesség 53 mm, 
fa ajtólap és acéltok, 10 mm-es visszahajlás


NovoSlide Wall, profilszélesség 47 mm, 
üvegajtó és acéltok, 10 mm-es visszahajlás


NovoSlide Wall, profilszélesség 59 mm, 
fa ajtólap és acéltok, 16 mm-es visszahajlás,
Deluxe padlóvezetés


NovoSlide Wall, profilszélesség 53 mm, 
üvegajtó és acéltok, 16 mm-es visszahajlás

NOVOSLIDE FRAME - műszaki adatok

NOVOSLIDE FRAME

A fal előtt futó NovoSlide Frame tolóajtórendszer egy előregyártott elem, amely egy acél válaszfaltokból és egy ráhegesztett vezetősín házból áll.

  • opcionálisan fa- vagy üvegajtókhoz
  • 1- vagy 2-szárnyú kivitel
  • 1-részes tok falazással egy időben történő beépítéshez
  • 2-részes tok utólagos beépítéshez

A tolóajtórendszer elemei:
1 x rendszerelem / méretre előregyártott 
1 x vezetősín profil
1 x padlóvezető fa vagy üveg ajtólaphoz
1 x golyóscsapágyas dupla görgős kocsi kétoldali nyitás-zárás csillapítással
1 x golyóscsapágyas dupla görgős kocsi beépített tisztítókefével 
1 x szerelvénycsomag fa vagy üveg ajtólaphoz
1 x szerelési utasítás

Rendelhető ajtólap méretek

  • egyedi méretekben is elérhető
  • egyedi ajtólapvastagságok is rendelhetők
  • minden falvastagsághoz kőműves vagy gipszkarton faltípushoz
  • számos további opció, mint például felül- vagy oldalvilágítók
  • különböző tokprofilok, pl. íves, árnyéknútos, stb.

NovoSlide Frame fal előtt futó válaszfaltok kőműves falhoz
 

NovoSlide Frame fal előtt futó válaszfaltok kőműves falhoz

NovoSlide Frame fal előtt futó saroktok kőműves falhoz

NovoSlide Frame fal előtt futó saroktok kőműves falhoz

NovoSlide Frame fal előtt futó válaszfaltok üvegajtóval, gipszkarton falhoz

NovoSlide Frame fal előtt futó válaszfaltok üvegajtóval, gipszkarton falhoz

NovoSlide Frame fal előtt futó 2-részes válaszfaltok utólagos beépítéshez gipszkarton falba

NovoSlide Frame fal előtt futó 2-részes válaszfaltok utólagos beépítéshez gipszkarton falba

NOVOSLIDE RAPID tolóajtó hajtás - műszaki adatok

NOVOSLIDE WALL RAPID

  • falra vagy opcionálisan mennyezetre szerelhető
  • mellékelt ábra: kőműves fal, fa ajtólap
  • fa ajtólapok esetén mindig golyóscsapágyas padlóvezető görgőkkel és süllyesztett szerelvénnyel

NOVOSLIDE POCKET RAPID

  • kétrészes acéltokkal, hegesztett vagy szétszerelt, horganyzott, alapozott, vagy opcionálisan GK-borítással, üveg ajtólapok esetén a nyílás szélessége keskenyebb
  • vevő által biztosított fatokhoz is
  • mellékelt ábra: gipszkartonfal, fa ajtólap

NOVOSLIDE FRAME RAPID

  • saroktokkal vagy egy- vagy kétrészes, horganyzott és alapozott válaszfaltokkal
  • számos kiviteli változat
  • mellékelt ábra: kőműves fal, fa ajtólap, 1-részes válaszfaltok

Felkeltettük az érdeklődését?

Keressen bennünket a KAPCSOLAT-fülön található elérhetőségeinken.