NovoPorta Plano tűzgátló acélajtó

A NovoPorta Plano tűzgátló acél ajtóelemek síkban záródó, elegáns, falc nélküli kialakításukkal Ei30 perces tűzgátlással, beltéri használatra alkalmasak.


Elegáns, falc nélküli kialakítás 
A NovoPorta Plano multifunkciós ajtó különösen a igényes építészet számára készült. Az ajtólap a tok síkjába záródik, szemben egy vastag falcos ajtóval, ahol a lap a tokra zár rá.


Sokféle funkció
A NovoPorta Plano falc nélküli acél ajtóelemek minden igényre kínálnak megoldást: tűzgátló, (EI2 30), füstgátló, biztonsági (RC 2), hanggátló (RW = 42 dB-ig) funkciókkal is kaphatók.


Szerelési előnyök
Egyszerű beépíthetőség pl. falcon keresztüli csavaros rögzítéssel, - gyors hézagkitöltés kőzetgyapot csíkokkal vagy tűzgátló purhabbal.

Novoporta plano tűzgátló ajtók összehasonlítása és részletei

A NovoPorta Plano tűzgátló ajtók összehasonlítása
Típus

Falc nélkül

EI2 30

EI2
60

EI2 90

Füst-
gátló

Hang-
gátló

Biztonsági
RC2

Biztonsági
RC3

Hőszigetelő

EI2 30-1
Plano

1-szárnyú

*

*

 

 

*

*

*

*

*

EI2 30-2
Plano

2-szárnyú

*

*

 

 

*

*

*

*

*

NovoPorta Plano EI30 tűzgátló ajtók - részletek



Vasalat:
2 db 3-részes 3D-ben állítható konstrukciós pánt szárnyanként (≥ 2.500 mm BRM-magasságtól: 3 db), standard kivitelben RAL 9016 fehér színre porszórva, opcionálisan rozsdamentes felülettel; 2 db kiemelésgátló biztonsági csap szárnyanként; biztonsági PZ-váltózár rozsdamentes zárelőlappal, fekete műanyag rozettás kilinccsel, cilinderbetét nélkül, (szükséges cilinderbetét: 90 mm (45/45),  kétszárnyú ajtók állószárnyán felső reteszelésű falcban futó letűzőzár, opcionálisan alsó-felső reteszeléssel. 

Ajtócsukó:
Egyszárnyú ajtóknál standard kivitelben NFGS 55 típusú csúszósines ajtócsukó, (> 1.250 mm-től: Geze TS 5000). Kétszárnyú ajtóknál Dorma TS 93 GSR vagy Geze TS 5000 ISM integrált csukássorrend-szabályzóval, középső ütközővel és falctömítéssel.

Tok:
Standard kivitelben: saroktok 3-oldalon körbefutó gumitömítéssel, lemezvastagság: 2,0 mm, tükörszélesség: 50 mm, opcionálisan válaszfaltok, utólag szerelhető tok, profilszám: 2240B, ellentok vagy blokktok

Küszöb:
Standard kivitelben: egyenes, A típus, választható: B3, 4-oldalon körbefutó kerettel; C2 alsó ütközővel; RS1 süllyedőküszöbbel; RS1 dupla süllyedőküszöbbel; RS2 íves profil ráfutóküszöbbel

Felület:
Ajtólap és tok standard kivitelben: horganyzott, alapozott RAL 9016 fehér színben
Opcionális felület: ajtólap, tok és pántok designfólia bevonattal

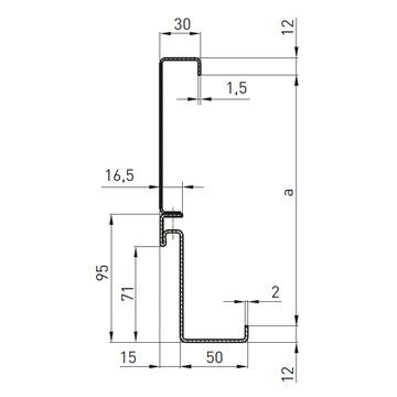
Függőleges metszet

Vízszintes metszet 1-szárnyú ajtó

Függőleges metszet üveges felülvilágítóval

Vízszintes metszet 2-szárnyú ajtó

Függőleges metszet tömör felülvilágító blendével

TOVÁBBI KIVITELEK:

  • Felülvilágító tömör blende / üveg
  • Tűzgátló üvegezés
  • Füstgátlás RS1 süllyedőküszöbbel vagy RS2 ráfutóküszöbbel EN 1634-3 szerint
  • Hanggátlás – EN ISO 140-3 szerint vizsgálva, EN ISO 717-1 szerint osztályozva, (Laborérték tele ajtólap esetén RS1 süllyedőküszöbbel: 1-szárnyú: 35 dB RW,P, 2-szárnyú: 33 dB RW,P)
  • Biztonsági kivitel RC2 (WK2) – EN 1627 szerint – tele ajtólap, egyszárnyú: BRM 1375 x 2750 mm-ig, kétszárnyú: 2500 x 2500 mm-ig

Novoferm multifunkciós acél ajtóelemek

 

A multifunkciós acél ajtóelemek előnyeit és felhasználási lehetőségeit a mellékelt videóban foglaltuk össze.

Termékeinkről további videókat a  Novoferm YouTube-csatornán talál:

https://www.youtube.com/NovofermVideos

Előnyök pontokba szedve:

  • Egy- és kétszárnyú tűzgátló acél ajtóelem beltéri használatra
  • EN 1634-1 szabvány szerint bevizsgált, ETA-18/0500 Európai Műszaki Értékeléssel
  • Síkban záródó, 64 mm vastag falc nélküli ajtólapok
  • Ajtólap és tok: horganyzott, alapozott, RAL 9016 fehér színre porszórt

Felszereltség

FELÜLETEK

 

Igényes, attraktív megjelenés

A teljesség igénye nélkül: hotelekbe, előcsarnokokba, társalgókba...

A NovoPorta Plano ajtók formanyelve következetesen egyszerű: a modern építészeti elvárásokat első osztályú technikai megoldásokkal kiszolgálni számos területen, pl. közintézményekben, irodaházakban, egészségügyi, szállodai, éttermi környezetben, új épületekben vagy akár felújítások során.

A NovoPorta Plano ajtók egy- és kétszárnyú változatban, 2500 x 2500 mm-ig egyedi méretekben rendelhetők. A modern ajtókkal szemben azonban nemcsak a műszaki tudásukat és biztonságos működésüket tekintve magasak az elvárások, a változatos kialakítási lehetőségek ugyanolyan hangsúlyosak, így felületek, színek és felszereltségi lehetőségek széles választéka áll rendelkezésre.

Színek határok nélkül

A NovoPorta Plano nem szab határokat, sőt, új, kreatív lehetőségeket nyit meg. A tiszta fehér színre porszórt alapkivitel ugyanolyan népszerűségnek örvend, mint a RAL, DB és NCS színek széles választéka, a 7 fautánzatú dekorfóliával kiegészítve.

...és mivel egy ajtónak két oldala van, akár két különböző színben is megrendelheti!

Éljen a sokszínűség!

Külső, mely kitűnik vagy épp belesimul

Ha egy sima, festett felület nem nyújt elég egyediséget, választhatunk a számtalan design-fólia mintázatból is. De még ezzel sem merült ki a választék: tervezze meg Ön az ajtója arculatát és mi kivitelezzük! Így válik igazán egyedivé a NovoPorta Plano ajtó.

Minden fólia színtartó és kellően vastag ahhoz, hogy hatékonyan ellenálljon a mindennapi igénybevételnek. Fényes és matt felülettel rendelhetők.


Minden környezethez megtaláljuk a megfelelő külsőt:
Számos matt (M) vagy magas fényű (H) felületből választhat.

Üvegezések

Az üveg és az azt tartó keret kiválasztása nagyban befolyásolja az ajtó megjelenését, ugyanakkor az egyre nagyobb súllyal bíró energiahatékonysági szempontokat is figyelembe kell venni. A NovoPorta Premio és Plano üvegezett tűzgátló ajtókat F30 / F60 /F90-es tűzgátló üveggel szállítjuk. A nyílászáró gyártók között egyedüliként az MZ többcélú ajtókat kiváló, 1,1 - 1,3 W/(m²K) hőátbocsátási tényezővel rendelkező hőszigetelt üveggel kínáljuk.

A NovoPorta Premio és NovoPorta Plano ajtók az alábbi üvegtípusokkal rendelhetők:
Standard és egyedi formájú üvegkivágások, alacsony hőátbocsástási tényezővel EN ISO 10077-1 szerint, edzett vagy ragasztott (ESG/VSG) biztonsági üvegezéssel is.

További ornament üvegtípusok: Mastercarré, Masterligne vagy tejüveg.

 

Üvegtípusok
NovoPorta Plano és Premio MZ-ajtókhoz

MZ-1
1-szárnyú

MZ-2
2-szárnyú

ISO 24 mm-es float-víztiszta (standard üveg)

*

*

ISO VSG/VSG 24 mm-es üveg (standard üveg)

*

*

ISO VSG/VSG 24 mm-es üveg matt fóliával (standard üveg)

*

*

ISO 24 mm-es fehér float-ornament üveg / Mastercarré

*

*

ISO 24 mm-es fehér float-ornament üveg/ Masterligne

*

*

ISO ESG/ESG 24 mm-es üveg

*

*

További 24 mm vastag ISO hőszigetelt üvegek ajánlatkérésre!

*

*

Üvegkivágás ISO 24 mm-es üveghez, de üveg nélkül

*

*

Üvegtípusok
NovoPorta Plano és Premio tűzgátló ajtókhoz

Ei30/60/90
1-szárnyú

Ei30/60/90
2-szárnyú

F30 20 mm-es float-víztiszta (standard üveg)

*

*

F60 27 mm-es float-víztiszta (standard üveg)

*

*

F90 40 mm-es float-víztiszta (standard üveg)

*

*


Üvegezett kivitelnél a megerősített oldal standard kivitelben a pántoldalon található.

 

Választható ornament üvegtípusok

Mastercarré

Masterline

Matt fólia (tejüveg)

Biztonsági, ütésálló üveg

RC2-es betörésvédelmi kategóriával rendelkező üvegkivágásos ajtóknál a biztonsági, ütésálló üveg alapfelszereltség. Opcionálisan minden NovoPorta Premio és Plano tűzgátló ajtó P4A kategóriájú, speciális, ütésálló tűzgátló üveggel is rendelhető.

Biztonsági kivitel esetén az üvegezőkeret lecsavarás és kiemelés ellen védett kialakítással készül.

ÜVEGezőkeretek és takaróprofilok

Standard üvegezőkeretek és elegáns takaróprofilok

Elegáns, rozsdamentes takaróprofilok


Akár klasszikus szögletes, akár kör alakú üvegezés:
a minőségi rozsdamentes takaróprofilok kiemelik a Plano ajtók eleganciáját. A takaróprofilokat egyszerűen csak a standard üvegezőkeretekre kell rögzíteni.

Anyaga: rozsdamentes acél
rendelhető szögletes és kör alakú üvegezésekhez

Festett acél üvegezőkeretek


A NovoPorta Plano ajtókhoz szállított acél üvegezőkeretek az ajtó színére festhetők, mely szintén hozzájárul a nyílászáró harmonikus megjelenéséhez és az épület egységes arculatához. A keretek mindig azonos szélességűek, függetlenül attól, hogy tűzgátló vagy MZ-többcélú ajtóba kerülnek beépítésre.

Anyaga: acél / rozsdamentes acél

Üvegezőprofilok

 


NovoPorta Plano EI2 30-1 és EI2 30-2 1) 2)

 


Rendelhető üvegezés: F30 üveg beltéri felhasználásra

Üvegezőkeretek acélból
Standard és egyedi szögletes és körüveg kivágásokhoz

Üvegezőkeretek rozsdamentes takaróprofillal
Standard és egyedi szögletes és körüveg kivágásokhoz

 

NovoPorta Plano MZ-1 és MZ-2 2)

 


Rendelhető üvegezés: Kizárólag ISO hőszigetelt üveg

Üvegezőkeretek acélból
Standard és egyedi szögletes és körüveg kivágásokhoz

Üvegezőkeretek rozsdamentes takaróprofillal
Standard és egyedi szögletes és körüveg kivágásokhoz

¹) Üvegezés csak beltéri felhasználás esetén. UV-sugárzás, direkt napsütés, halogén fény ellen védendő.
   Az üveg csak –20-tól +45 °C-ig használható.
²) A standard acél üvegező keretek mindkét oldalon látszó csavarozással vannak rögzítve. 
   MZ-többcélú ajtók esetén a külső, (támadási) oldalon megerősített biztosítással.

Műszaki adatok

Műszaki adatok NovoPorta Plano EI 30
    
Ajtótípus
 

NovoPorta Plano
EI2 30
egyszárnyú

NovoPorta Plano
EI2 30
kétszárnyú

Engedélyezett méretek

 

 

Rendelési méret (BRM) 

Szélesség min. - max.

Magasság min. - max.

625-1.375

1.750-2.750

1.375-2.500

1750-2.500

Felülvilágítóval2)Magasság max.

3.500

3.500

- ebből ajtóMagasság max.

2.500

2.500

Füstgátló kivitel felülvilágítóvalBRM max.

3.500

3.500

 
Ajtólap
Ajtólap vastagsága kb.

64

64

Lemezvastagság kb.

1,0

1,0

JárószárnySzélesség min. - max.

-

589-1.228

ÁllószárnySzélesség min. - max.

-

525-1.228

NyitásirányDIN szerint

balos/jobbos

Járószárny balos/jobbos

 
Falazat
Kőműves fal

> 115

> 115

Beton

≥ 100

≥ 100

Pórusbeton

≥ 150

≥ 150

Vasbeton pórusbeton falpanelek

≥ 150

≥ 150

F60-A- és F90-A tűzgátló gipszkartonfal
(DIN 4102, 4.rész, 48. tábla)

≥ 100

≥ 100

F60-B- és F90-B tűzgátló gipszkartonfal
(DIN 4102, 4.rész, 49. tábla)

≥ 130

≥ 130

További engedélyezett szerelt faltípusok min. F60-A/F60-B
ajánlatkérésre

*

*

Burkolt acél vázszerkezet min. F60-A, vagy burkolt
favázas szerkezet min. F60-B DIN 4102-4 szerint

*

*

 
Kivitelek
Tűzgátlás EN 1634-1 szerint bevizsgálva

*

*

Tűzgátló üvegezés ¹)

*

*

Füstgátlás

*

*

Hanggátlás (süllyedőküszöbbel, üveg nélkül) 
(laborérték DIN EN ISO 717-1 szerint)

kb. 
35 dB RW,P

kb. 
35 dB RW,P

Biztonsági kivitel EN 1627 szerint (tele ajtólap)

RC2

RC2

Novoferm design felületBRM max.

1.250x2.250

2.500x2.250

 
F30 üvegezés
Szögletes, standard méretű üvegkivágások látszó csavarozású üvegezőkerettel
alapkivitel: horganyzott, porszórt alapozott RAL 9016 színben, opcionálisan rozsdamentes takaróprofillal
Minimális frízszélesség 3-oldalon: ≥ 150 mm, zár felőli oldalon, ill. állószárnyon középen ≥ 180 mm

*

*

Köralakú üvegkivágások
Üvegezőkeretek és min. frízszélességek: lásd a standard szögletes üvegkivágásoknál

*

*

Egyedi méretű üvegkivágások
150 x 150 mm-től 849 x 2134 mm-ig
Üvegezőkeretek és min. frízszélességek: lásd a standard szögletes üvegkivágásoknál

*

*

 

 

 

 

Európai Műszaki Értékelés (ETA)

ETA-18/0500

ETA-18/0500

¹) Üvegezés csak beltéri felhasználás esetén. (Az üveg UV-sugárzástól és közvetlen halogén-fénytől védendő, csak –20 +45˚C közötti hőmérséklettartományban használható.) 
Az adatok 1000 x 2000 mm-es ajtóméretre érvényesek. / Minden megadott üvegméret a tiszta üvegméretre vonatkozik.
²) Felülvilágítós kivitel csak kőműves falba (tégla/beton/pórusbeton) történő beépítéshez engedélyezett.
* rendelhető   – nem rendelhető
Minden méret mm-ben van megadva. BRM = beépítési (rendelési) méret    RAM = tok külméret    LD = szabad átjáróméret
Tok rögzítési módok

Tok rögzítési módok áttekintése


Dübeles rögzítés
saroktok


Csavaros rögzítés tokfalcon keresztül
saroktok


Hegesztett szerelés
saroktok
(látszó kőműves fal)


Hegesztett szerelés
saroktok
(pórusbeton fal)


Rejtett csavaros rögzítés
2240B kétrészes tok
(látszó kőműves fal)


Rejtett csavaros rögzítés
2240B kétrészes tok
(F60-A/F90-A gipszkartonfal)



Csavaros rögzítés tokfalcon keresztül
2240B kétrészes tok
(F60-B/F90-B favázas szerelt fal)


Csavaros rögzítés
2240B kétrészes tok 
(burkolt acélvázas szerelt fal, min. F60-A)


Csavaros rögzítés
válaszfaltok
(látszó kőműves/betonfal)


Hegesztett szerelés
válaszfaltok
(látszó kőműves/betonfal)


Csavaros rögzítés tokfalcon keresztül
saroktok + ellentok
(látszó kőműves/betonfal)


Dübeles rögzítés
saroktok + kiegészítőtok
(kőműves/betonfal)


Blokktok tip. 1
(látszó kőműves fal)


Blokktok tip. 2
(látszó kőműves fal)


Blokktok tip. 1
(F60-A / F90-A gipszkartonfal)


Blokktok tip. 2
(F60-A / F90-A gipszkartonfal)

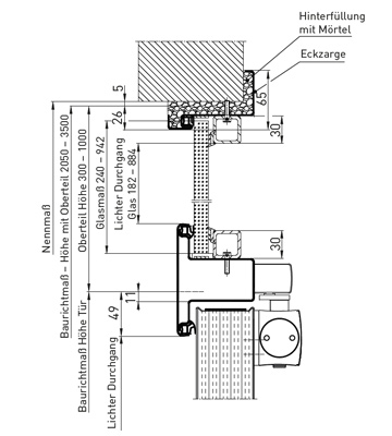
Szabad átjáróméretek

Saroktok szabad átjáróméretének
meghatározása

Szabad átjáróméret
1-szárnyú ajtók

Szabad átjáróméret
2-szárnyú ajtók

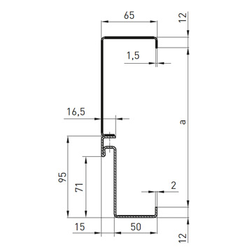
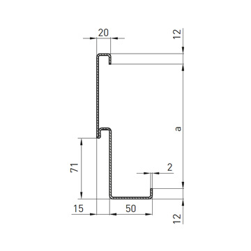
Toktípusok

Típusáttekintés

Saroktok

Válaszfaltok

Blokktok tip.2 szélesített toktükörrel

Saroktok kiegészítőtokkal

2240B kétrészes válaszfaltok

Saroktok ellentokkal

Blokktok tip.1

Küszöbök

Küszöbtípusok

A
Síkban padlóra záródó


RS1
Süllyedőküszöb

B3
4-oldalon körbefutó keret
ütközőküszöb tömítéssel

RS2
Íves profil ráfutóküszöbbel

C2
Küszöb alsó ütközővel


2RS1
dupla süllyedőküszöb

Szerelés


A NovoPorta Plano ajtók beszerelésekor gyors, egyszerű és tiszta szerelési és hézagkitöltési módok közül választhat.

speciális szárazépítészeti megoldások / hézagkitöltések

NovoPorta Plano 2240B típusú kétrészes tokkal

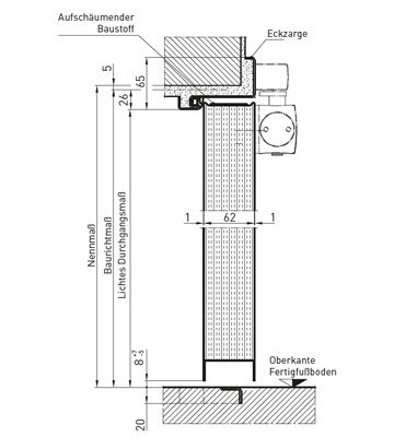
Az F60-A / F60-B típusú szerelt válaszfalak gyorsan, tisztán és rugalmasan szerelhető tűzvédelmi megoldásoknak számítanak. A NovoPorta Plano Ei30 ajtóelemek speciális kialakításuknak köszönhetően gipszkarton falakba is egyszerűen beépíthetők. Az ajtóelem részei: NovoPorta Plano falc nélküli acél ajtólap és 2240B típusú kétrészes acéltok.

A beépítést rendkívül megkönnyíti az engedélyezett Novoferm tűzgátló pisztolyhabbal vagy a kőzetgyapottal* történő hézagkitöltési eljárás. A minősítő engedély szerint elegendő csak a saroktok mögötti hézagot kitölteni, míg a speciális 2240B ellentok szabadon maradhat. 

A teljes rendszer EN 1634 szabvány szerint került bevizsgálásra, DIN 4102 szabvány szerint engedélyezésre, és teljesíti a jövőben életbe lépő európai EN 16034 számú termékszabvány előírásait is.

* Testsűrűség: ≥ 40 kg/m³, Olvadáspont: > 1.000 °C, Építőanyag osztály: A1

 

Tok hézagkitöltések

Hézagkitöltés kereskedelemben kapható kőzetgyapottal

  • Testsűrűség: ≥ 40 kg/m³, Olvadáspont: > 1.000 °C, Építőanyag osztály: A1
  • A kőzetgyapot szakkereskedésben könnyen beszerezhető
  • Gazdaságos, felhasználóbarát, könnyen szállítható, tisztán és gyorsan használható
  • Időtakarékos, mivel csak a saroktok mögötti részt kell vele kitölteni, az ellentok rész üresen maradhat
  • EN 1634 szabvány szerint bevizsgált

Hézagkitöltés kereskedelemben kapható kőzetgyapottal

Hézagkitöltés tűzgátló purhabbal

  • Csak Novoferm 1K-tűzgátló pisztolyhab használható
  • Az ajtók csukódásakor jelentősen csökkenti a zajkibocsátást
  • Gazdaságos, felhasználóbarát, könnyen szállítható, tisztán és gyorsan használható
  • Időtakarékos, mivel csak a saroktok mögötti részt kell vele kitölteni, az ellentok rész üresen maradhat (A kifolyt habot az ellentok eltakarja, így nem kell levágni)
  • Gazdaságos, egy flakon kb. 12 folyóméterre, min. 2 db egyszárnyú tokhoz elegendő
  • EN 1634 szabvány szerint bevizsgált

Hézagkitöltés tűzgátló purhabbal

Ei30 perces tűzgátló kivitel hézagkitöltés nélkül is

Egy tok, ami Ei30 perces tűzgátló kivitelben hézagkitöltés nélkül is engedélyezett?
Ráadásul mindez gipszkarton falba? Ilyen nincs! Nem gondolja?
Az új, kétrészes 2240B típusú tokkal pedig ez lehetséges!
 
Minden Plano ajtó alapkivitelben 3D-s állítható pántokkal rendelkezik. Ezekhez a pántokhoz nagyobb pánttáskák szükségesek, melyek több helyet igényelnek a tok mögött. Ezt általában úgy szokták megoldani, hogy az UA-erősített bordát kivágják, ami viszont gyengíti a fal statikai teherbírását.

A Plano ajtók tűzgátló gipszkarton falba történő szerelésénél a spalettát dupla gipszkarton lappal burkolják.
Az eredmény: nincs szükség az UA borda kivágására, elegendő csak a gipszkarton csíkokat kivágni.
 
A NovoPorta Plano ajtók azonban még ennél is többet kínálnak: ha a gipszkartonos a nyílást pontosan a beépítési méretre alakította ki, a tok mögötti részt nem kell kitölteni. A betolható rögzítőfülekkel pedig a szerelés nem is lehetne gyorsabb!

CSAVAROS RÖGZÍTÉS tokfalcon keresztül

EGYSZERŰ SZERELHETŐSÉG: RÖGZÍTÉSI PONTONKÉNT CSAK 1 DB CSAVARRAL

Legyen akár standard saroktok, akár 2240B típusú kétrészes tok: a tokfalcon keresztüli csavaros rögzítés a leggyorsabb és legegyszerűbb megoldás.
Előnye, hogy rögzítési pontonként csak 1 db csavarra van szükség, mely biztosítja a tok stabilitását, ugyanakkor a szerelési idő is lerövidül.

A NovoPorta Plano falc nélküli ajtóelemet standard kivitelben padlóbeállás nélküli saroktokkal szállítjuk. Tokfalcon keresztül csavarosan rögzíthető vakolatlan tégla, beton vagy (csak a Plano-nál engedélyezett) pórusbeton falba.

A hézagkitöltés történhet Novoferm tűzgátló purhabbal, kőzetgyapottal* vagy klasszikus módon cementhabarcs kiöntéssel, melyek tűzgátló, füstgátló és MZ-többcélú kivitelnél is engedélyezettek.

*Minimális testsűrűség: 40 kg/m³, Olvadáspont: > 1.000 °C, Építőanyag osztály: A1

A megoldás egyszerűen nagyszerű:
rögzítési pontonként csak egy csavar szükséges

Különböző faltípusokba építhető


A hézagkitöltés módját a faltípustól függetlenül tetszőlegesen lehet megválasztani. Mind a Novoferm tűzgátló purhab (kék), mind a kőzetgyapot* (sárga) és a cementhabarcsos kiöntés (szürke) engedélyezett.

*Minimális testsűrűség: 40 kg/m³, Olvadáspont: > 1.000 °C, Építőanyag osztály: A1

Felkeltettük az érdeklődését?

Keressen bennünket a KAPCSOLAT-fülön található elérhetőségeinken.